In Esclusiva
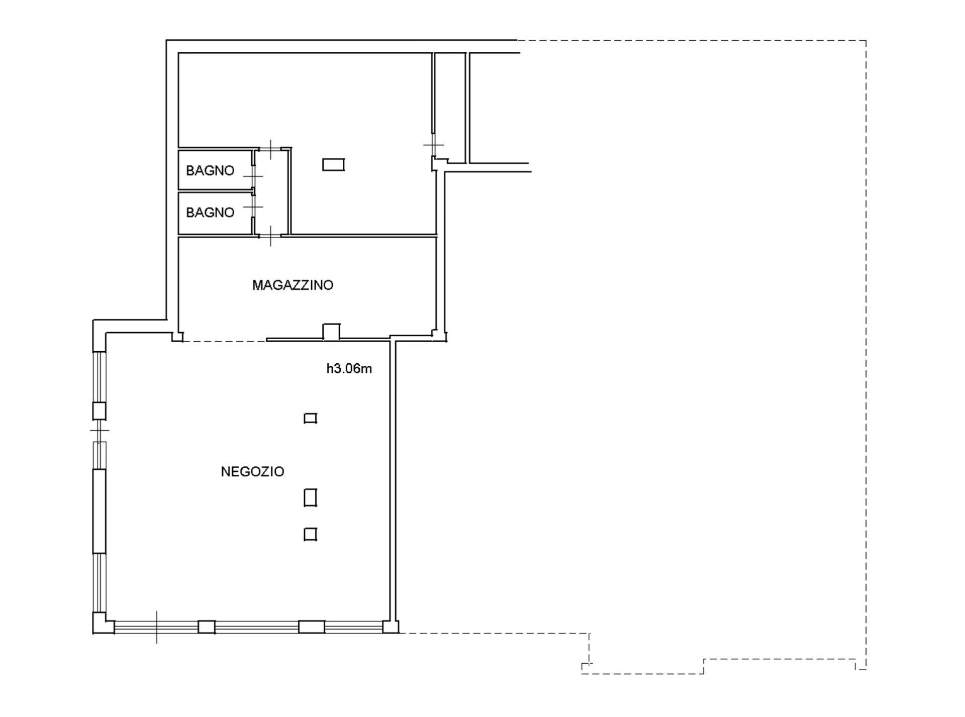
Negozio / locale commerciale di 156 m² in Castelfidardo (60022)
220.000 €
1.410 €/m²
156 m²
3 locali
2 bagni
A proposito di questo negozio/locale commerciale a Castelfidardo (60022)
"JOLLY"
Cerchi uno spazio ampio, luminosissimo e in posizione centrale? L'immobile in oggetto è già stato uno splendido negozio in passato!
Oppure stai pensando ad un bell'appartamento di oltre 150 mq...?
Dai libero sfogo alla tua fantasia!!
CHIAMA SUBITO per capire tutta la potenzialità di questo splendido immobile!
Riferimento: 87438
Pertinenze
Altro
Anno di costruzione: 1970
Dove si trova l'immobile?
Questo negozio/locale commerciale si trova a Castelfidardo (60022).
Immobili simili
Popover 1
Popover 2
Popover 3
Popover 4











