Ristorante gourmet di 1.000 m² in Desenzano del Garda (25015)
Caratteristiche
A proposito di questo negozio/locale commerciale a Desenzano del Garda (25015)
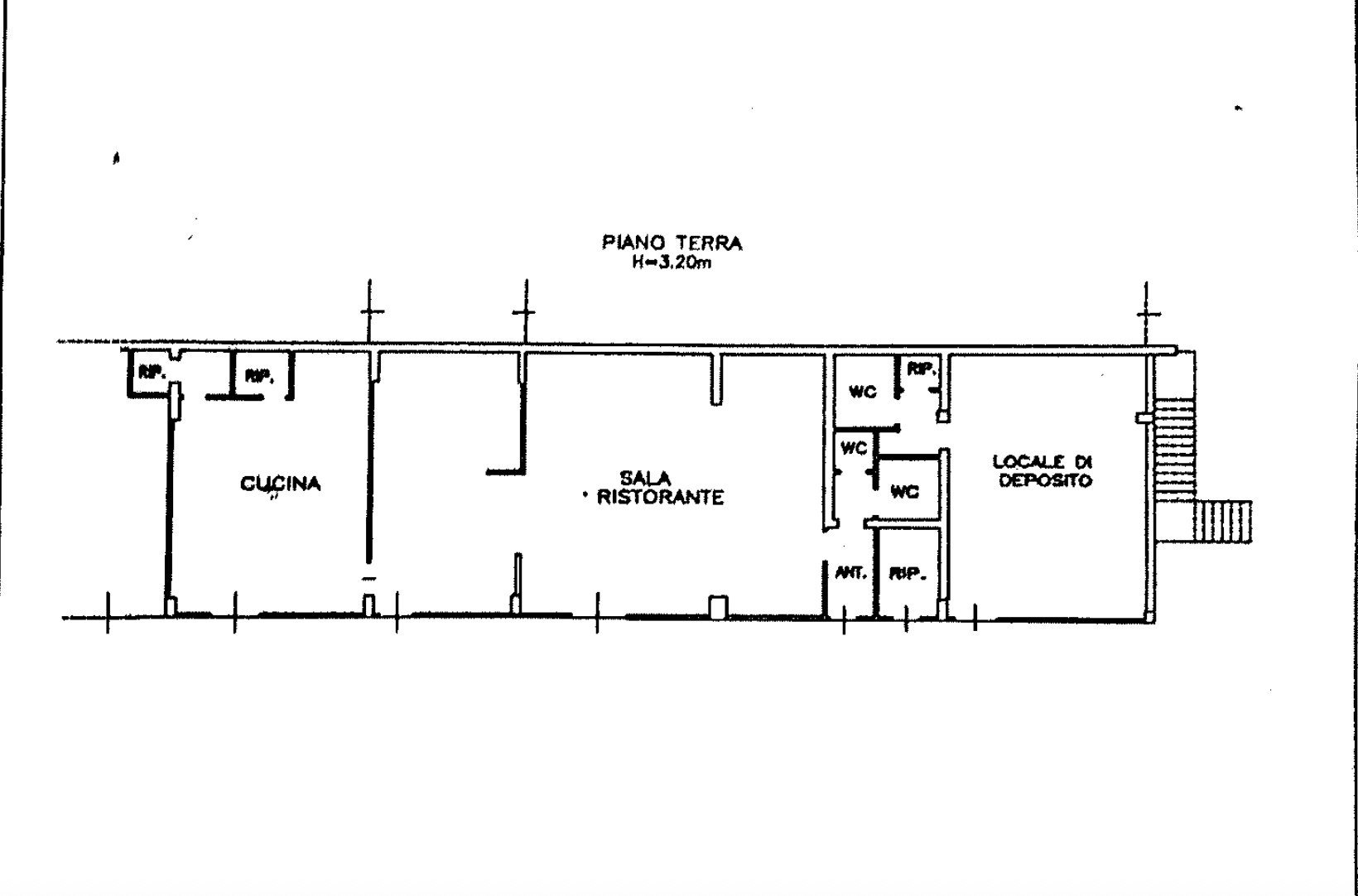
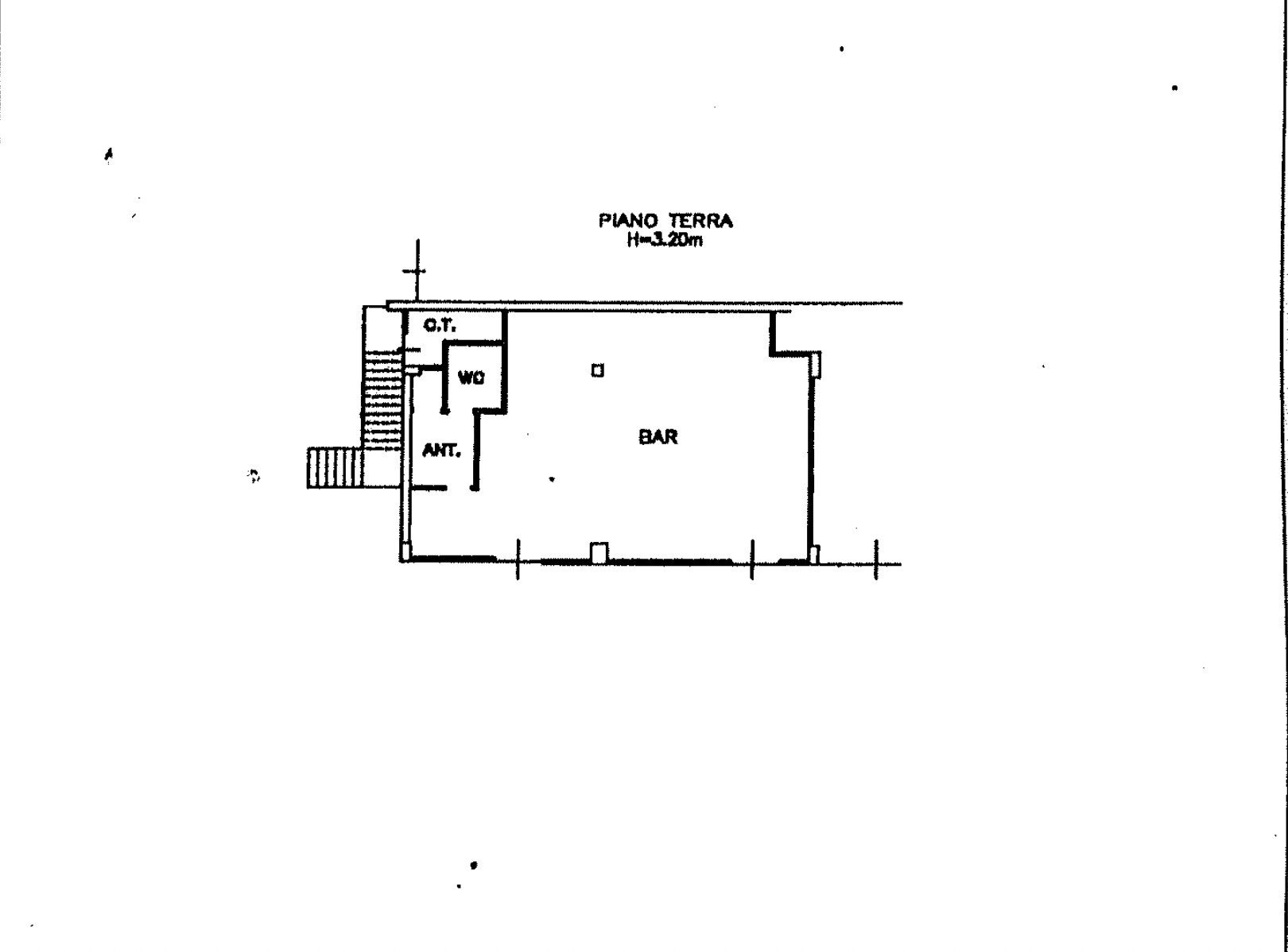
Immerso nel cuore del prestigioso Green Residence Sirmione, tra le incantevoli sponde di Desenzano del Garda e Sirmione, questo affascinante immobile adibito a bar-ristorante-pizzeria è un'opportunità unica per chi desidera investire in un ambiente dinamico e ricco di potenzialità. Con il suo plateatico affacciato sulla splendida piscina, il locale diventa un punto di ritrovo irrinunciabile per i residenti e i turisti.Il ristorante si trova all'interno di un complesso residenziale che ospita circa 1000 appartamenti e offre ai suoi ospiti tre piscine scintillanti, ampi giardini curati e spazi ricreativi per il massimo del confort e della convivialità. Durante il periodo estivo, il flusso di visitatori può raggiungere le 3000 persone, rendendo questa struttura l'unico esercizio commerciale attivo nel residence, garantendo così una clientela costante e appassionata.L'immobile dispone di spazi ben distribuiti: al piano terra, un bar accogliente con relativi servizi di 87 mq, una zona ristorante completa di cucina e forno a legna di 179 mq, e una bellissima veranda con circa 300 posti a sedere, ideale per cene sotto le stelle. Al piano interrato, una cella frigorifera di 74 mq assicura la gestione ottimale delle materie prime. La struttura è attualmente locata, rendendo questo investimento ancora più interessante.Questo locale rappresenta non solo un'opportunità commerciale, ma anche un luogo di incontro dove la gastronomia si sposa con il relax in un'atmosfera da sogno. Non perdere l'occasione di far parte di questo angolo di paradiso!
Pertinenze
Esterno
Questo negozio/locale commerciale si trova a Desenzano del Garda (25015).

