

1.600.000 €
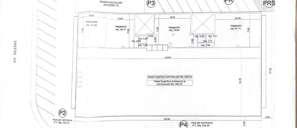
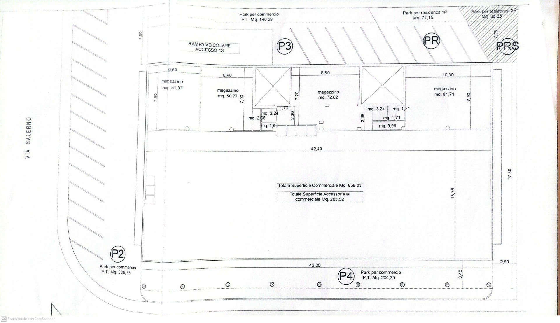
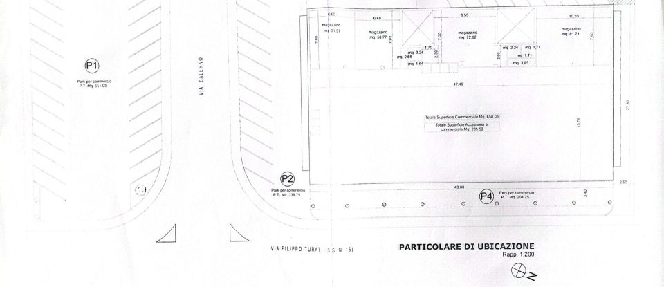
A Giulianova su la nazionale adriatica , proponiamo in vendita ampio locale commerciale, dalla grande versatilità per creare realtà di vario genere o ideale per attività quali grandi magazzinin o centri commerciali. Si sviluppa al piano terra , offrendo una metratura generosa di circa 1000 mq più 1300mq parcheggi. La struttura è caratterizzata da vetrine fronte strada, che garantiscono un'ottima esposizione. Gli interni, concepiti come open space, permettono una grande flessibilità nella gestione degli spazi, adattandosi a diverse esigenze. Situato in una zona servita, l'immobile beneficia della vicinanza a numerosi servizi e infrastrutture, rendendolo una scelta strategica per chi desidera investire in un'area dinamica e ben collegata. La struttura si trova sull'asse principale di Giulianova, vicino alla stazione ferroviaria di Giulianova e alla costa, ed è composta come segue: -Superficie commerciale open space 658 mq -Superficie accessoria al commerciale 285 mq dove si trovano magazzini, deposito, ripostiglio, bagni -Parcheggi a servizio commerciale sia frontale, laterale, annesso per 1335 mq
Riferimento: 148127
Classe energetica
G
Immobili simili
