Capannone di 915 m² in Osimo (60027)
A proposito di questo negozio/locale commerciale a Osimo (60027)
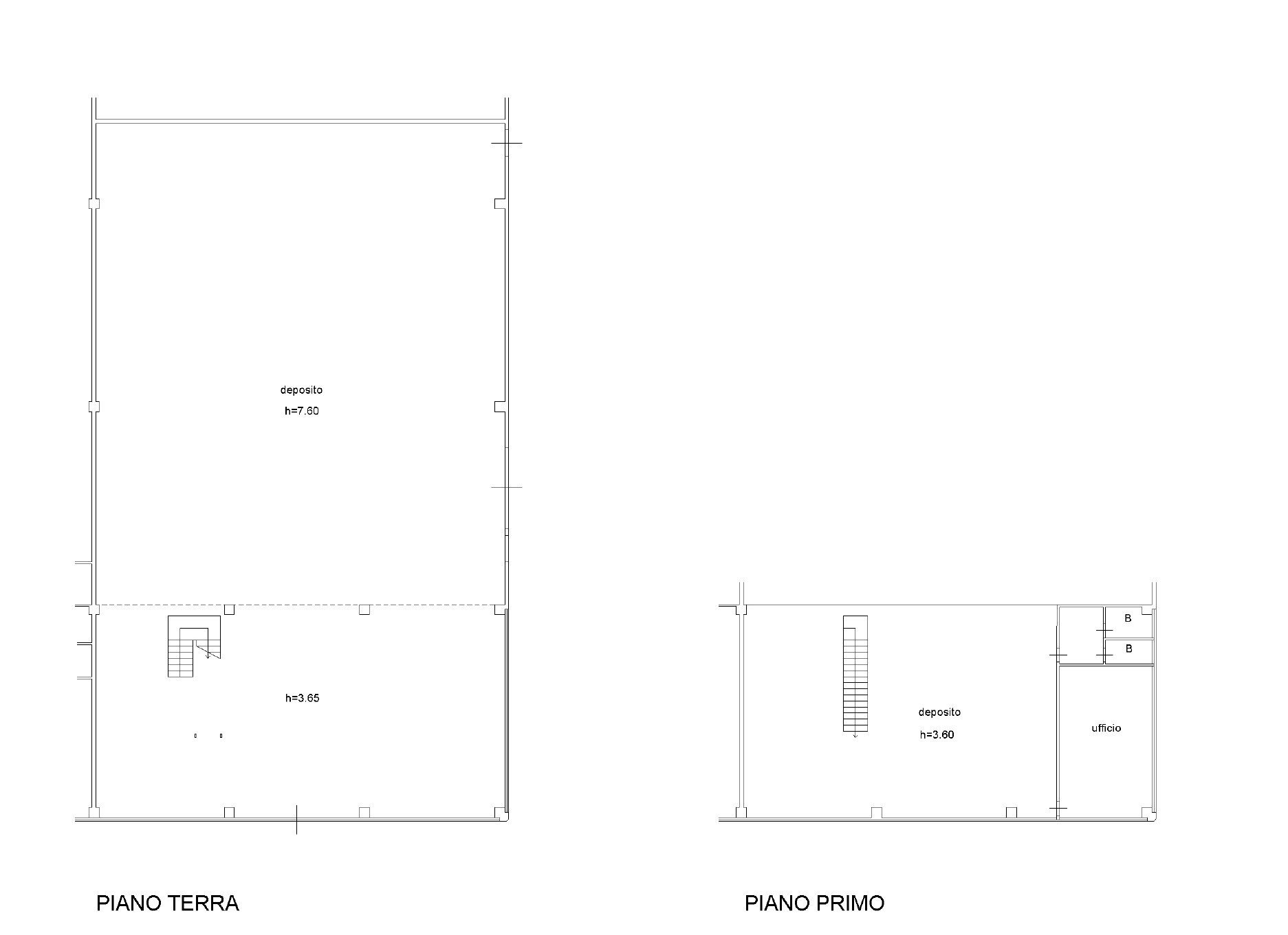
in località Osimo Stazione, via Crispi 36, si propone in vendita questo capannone industriale di circa 915 mq, porzione di un immobile di piu' ampia dimensione (3.500 mq) . Il fabbricato si colloca in zona industriale di recente sviluppo, servita da ampi spazi di urbanizzazione pubblica di transito e parcheggio, a pochi minuti dal casello Ancona sud. L'immobile, costruito a partire dal 2007 e completato nel 2012, è in struttura prefabbricata in c.a.p. con maglia strutturale principale 10 x 20 metri, altezza utile media 7,50 circa. La copertura è in tegoli alari con manto impermeabilizzante in alluminio. La superficie coperta o di piano terra è di circa 700 mq con piano primo ammezzato di 215 mq , collocato lato facciata, per un totale di circa 915 mq utili. In copertura è installato un impianto fotovoltaico che produce una rendita derivante da vendita dell'energia ed incentivo Gse (4° conto energia). chiamaci per ulteriori informazioni.
Pertinenze
Esterno
Altro
Classificazione energetica
Efficienza Energetica:
Questo negozio/locale commerciale si trova a Osimo (60027).















