Negozio / locale commerciale di 240 m² in San Nicola la Strada (81020)
A proposito di questo negozio/locale commerciale a San Nicola la Strada (81020)
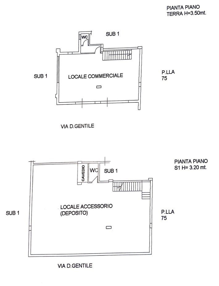
In Vendita – Locale Commerciale Nuova Costruzione a San Nicola la Strada.
Soluzione moderna sviluppato su due livelli con ampie vetrine e parcheggio!
Proponiamo un locale commerciale di nuova costruzione situato in posizione strategica a San Nicola la Strada, ideale per ristoranti, negozi, showroom o uffici professionali.
Caratteristiche principali:
Due splendide vetrine fronte strada che garantiscono massima visibilità
Locale disposto su due livelli:
Piano Terra con ingresso diretto su strada
Piano S1 comodo e funzionale, perfetto come deposito, cucina, magazzino o uffici operativi
Struttura moderna, pronta all’uso
Possibilità di parcheggio antistante il locale, comodo per clienti e dipendenti
📈 Ottima opportunità per chi desidera avviare o ampliare un’attività in una zona in crescita, facilmente raggiungibile e ben servita.
📞 Contattaci per maggiori informazioni o per prenotare una visita!
Pertinenze
Interno
Altro
Questo negozio/locale commerciale si trova a San Nicola la Strada (81020).

