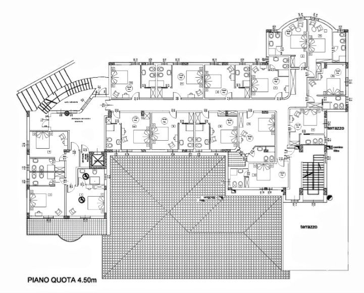
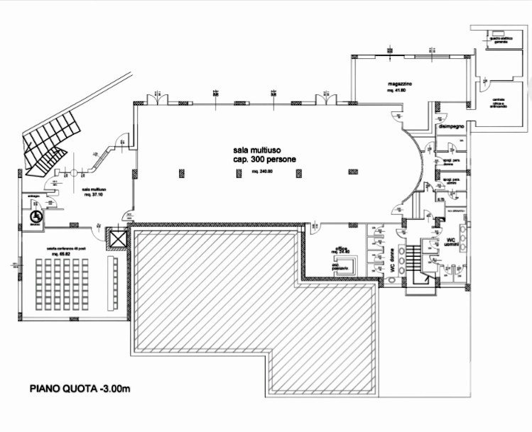
Hotel-ristorante di 1.200 m² in Bugnara (67030)
Caratteristiche
A proposito di questo negozio/locale commerciale a Bugnara (67030)
Ristorante Tre Archi + Hotel Sagittario
La IAD Italia propone in vendita Hotel e Ristorante vicino la storica cittadina di Sulmona.
Possibilità di acquistare il tutto anche con formula rent to buy, pagando una rata fissa mensile per poi riscattare lo stabile.
Questa è un'opportunità unica per acquistare un albergo in uno dei borghi più suggestivi d'Abruzzo e avviare la propria attività di successo nel settore turistico.
Entrambe le attività sono efficacemente avviate e perfettamente funzionanti e propongono un intramontabile stile classico e lussuoso.
È possibile realizzare una struttura extralberghiera (RSA) per offrire un ulteriore opportunità di investimento grazie ai suoi progetti già approvati.
Non perdere l'occasione di diventare proprietario di questo meraviglioso albergo con Ristorante storico nella valle Peligna.
Contatta la IAD Italia Transazioni SRL.
Pertinenze
Esterno
Altro
Classificazione energetica
Efficienza Energetica:
Questo negozio/locale commerciale si trova a Bugnara (67030).










