Negozio / locale commerciale di 160 m² in Genova (16149)
A proposito di questo negozio/locale commerciale a Genova (16149)
Grande e spazioso locale commerciale in Via Cantore, nel notissimo “Palazzo Lancia”, ideale come INVESTIMENTO A REDDITO o per SVARIATI IMPIEGHI futuri.
Nelle immediate adiacenze del Matitone e a poca distanza dal casello autostradale di Genova Ovest, in posizione di intensissimo passaggio veicolare, proponiamo un AMPIO E BEN VISIBILE LOCALE COMMERCIALE DI CIRCA 160 mq, caratterizzato da quattro luci con grandi vetrine su strada, che lo rendono immediatamente riconoscibile.
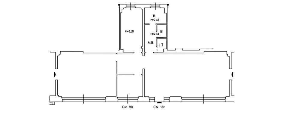
L'immobile è ristrutturato, molto luminoso, in ottime condizioni generali e dotato di grandi spazi, uffici, due bagni.
Sono compresi nel prezzo due piccoli locali ad uso deposito, raggiungibili dai portoni a lato del locale.
L'attraversamento pedonale, situato a pochi metri dall'ingresso, permette al locale di essere comodamente raggiungibile dopo aver parcheggiato nell'area o nel parking che si trovano nella parte opposta, oppure dalle fermate dei bus per entrambe le direzioni, posizionate a pochi metri dall'entrata.
L'immobile è attualmente locato a un affittuario molto affidabile e puntuale, con pagamenti dimostrabili, il che rende l'investimento realmente interessante e con un'OTTIMA REDDITIVITÀ LORDA PARI A CIRCA IL 10%.
In sintesi: un'opportunità unica da non lasciarsi sfuggire!
Dati immobile principale:
categoria catastale C/1
rendita catastale: € 2.231,09
APE: classe E – 173.33 kWh/mq anno
Pertinenze
Altro
Classificazione energetica
Efficienza Energetica:
Questo negozio/locale commerciale si trova a Genova (16149).









