Loft 1 locale di 129 m² a Civitanova Marche (62012)
Caratteristiche
Su questo monolocale a Civitanova Marche (62012)
Loft in Vendita a Civitanova Marche – Spazio e Indipendenza
A Civitanova Marche Alta, in una zona residenziale tranquilla e ben collegata, proponiamo in vendita un LOFT con ingresso indipendente, perfetto per chi cerca uno spazio unico, funzionale e dal carattere deciso.
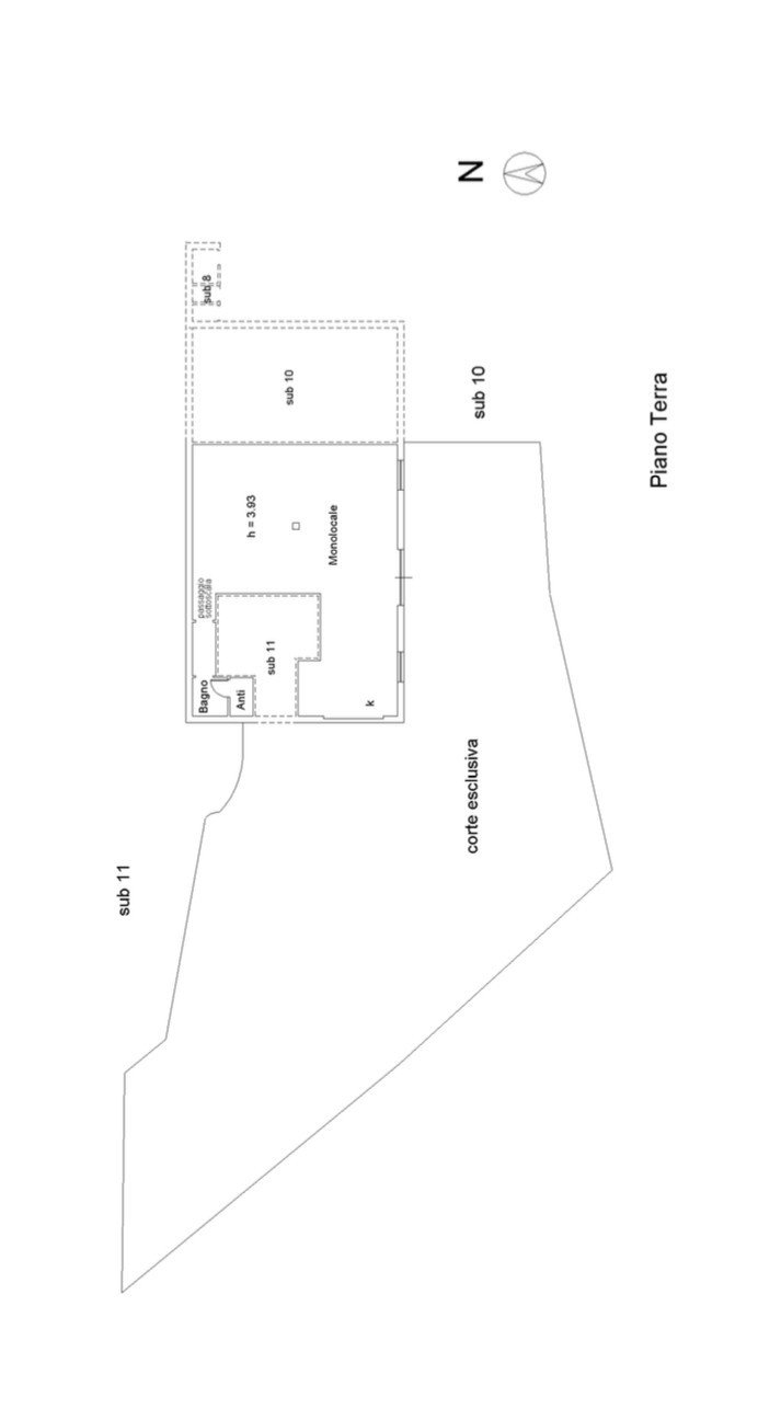
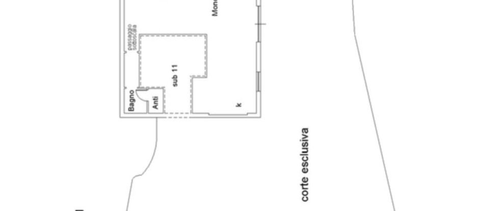
L’immobile, ristrutturato alla fine degli anni '90, si sviluppa al piano terra e offre una superficie di circa 112 mq, distribuiti in un ampio open space con zona giorno e notte armoniosamente integrate, una cucina moderna e attrezzata e un bagno comodo con antibagno. L’altezza dei soffitti, pari a 3,63 metri, dona respiro e luminosità all’ambiente, rendendolo accogliente e arioso.
Uno dei punti di forza di questo loft è sicuramente l’ampia corte esclusiva di circa 170 mq, uno spazio esterno raro e prezioso, ideale per godersi momenti di relax all’aperto, ospitare cene con amici o semplicemente parcheggiare comodamente più di un’auto.
L’ingresso è completamente autonomo, garantendo privacy e indipendenza. L’immobile si presenta in ottime condizioni: è pronto per essere abitato fin da subito o per essere messo a reddito, anche come casa vacanze o studio professionale.
Una soluzione perfetta per chi cerca uno spazio aperto, versatile e in una posizione strategica, a pochi minuti di auto dal centro e dal mare.
Contattaci per avere maggiori informazioni o per fissare una visita!
Pertinenze
Altro
Questo appartamento si trova a Civitanova Marche (62012).




