Quadrilocale di 125 m² a Milano (20126)
Su questo quadrilocale a Milano (20126)
Real Estate propone in vendita ai suoi clienti duplex con giardino privato di quattro locali di 125 mq posto al piano rialzato e seminterrato servito da ascensore, abitabile, collocato in uno stabile in ottime condizioni generali, situato a Milano (MI) in via Giuseppe Bottelli n°16.
POSIZIONE
L’immobile si trova in zona Greco in un contesto tranquillo e riservato, comodo per raggiungere l’Università Bicocca e la Stazione Centrale.
A breve distanza da tangenziali e autostrade, che permettono di spostarsi facilmente verso Milano e le città limitrofe.
Ben collegato grazie alla vicinanza della fermata del bus e della metropolitana lilla (Ca Granda), che consentono rapidi spostamenti verso Milano e dintorni.
Tutti i servizi di prima necessità si trovano a ridosso dell’immobile.
PARTE ESTERNA
Lo stabile esternamente si presente in ottime condizioni generali.
PARTE INTERNA
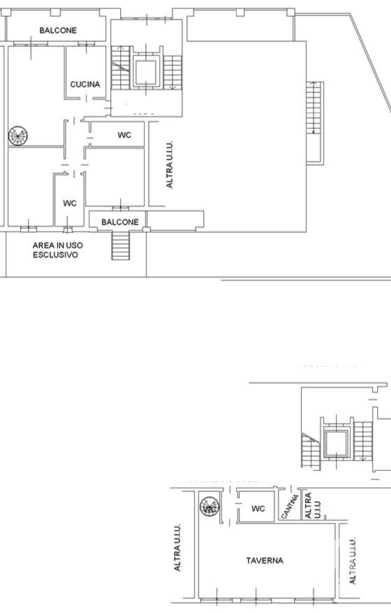
Internamente è così composto;Ingresso al piano terra su disimpegno d’ingresso, soggiorno e cucina abitabile con accesso sul balcone con affaccio sul cortile condominiale, disimpegno zona notte, camera da letto, seconda camera con uscita sul giardino privato, cabina armadio e bagno finestrato con vasca.
Tramite una comoda e curata scala accendiamo al piano inferiore dove troviamo un ampia taverna e un secondo bagno con box doccia.
Completa la proprietà una comoda cantina.
Possibilità di Box auto di 15 mq venduto separatamente ad € 34.000,00
PARTE IMPIANTISTICA
Gli impianti sono in ottime condizioni.
Il riscaldamento autonomo è alimentato da caldaia a gas tramite radiatori.
Il raffreddamento è alimentato tramite climatizzatori dotati di tecnologia a pompa di calore presenti in in tutti gli ambienti.
L’acqua calda sanitaria viene alimentata tramite la caldaia a gas.
PARTE TECNICA
L’immobile si trova in ottime condizioni interne, pavimentazione in parquet e ceramica, infissi in doppio vetro legno.
PERCHE’ SCEGLIERE QUESTO IMMOBILE:
Ideale per chi cerca comfort e funzionalità.
Soluzione pronta da abitare senza interventi.
Perfetto per famiglie o giovani coppie.
“Contattaci subito per fissare una visita”
Pertinenze
Altro
Classificazione energetica
Efficienza Energetica:
Questo appartamento si trova a Milano (20126).










