Quadrilocale di 143 m² a Castiglione delle Stiviere (46043)
Caratteristiche
Su questo quadrilocale a Castiglione delle Stiviere (46043)
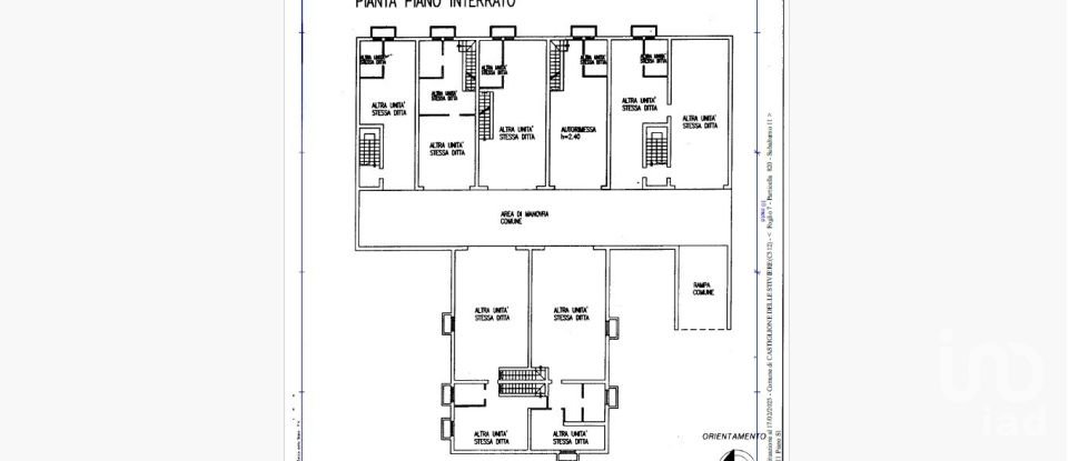
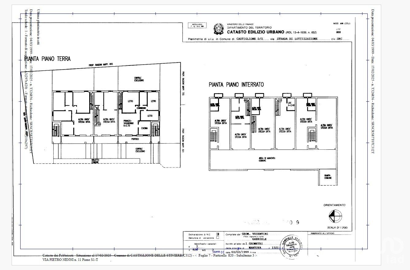
soluzione introvabile: quadrilocale a piano terra con due bagni e doppio box auto.
In tranquillo contesto residenziale di sole 5 unità, proponiamo in vendita un quadrilocale a piano terra, senza barriere architettoniche, una tipologia estremamente rara e ricercata, perfetta per chi desidera comfort e praticità in una zona strategica.
L'immobile si distingue per la sua ottima disposizione interna: soggiorno luminoso, cucina abitabile, tre camere da letto e bagno principale finestrato. Accesso diretto all’area esterna composta da un piccolo giardino sulla parte frontale e un pratico cortile sul retro con zona barbeque.
A completare la proprietà troviamo un ampio interrato collegato internamente, con un secondo bagno/lavanderia e un doppio box auto di generose dimensioni, comodo per due vetture e ulteriore spazio di deposito.
Situato in una zona residenziale tranquilla, ma a pochi minuti dal centro e da tutti i principali servizi (scuole, supermercati, fermate autobus, ecc.), questo immobile rappresenta una soluzione ideale per famiglie o per chi desidera vivere in un contesto riservato ma perfettamente servito.
Pertinenze
Esterno
Altro
Classificazione energetica
Efficienza Energetica:
Emissioni di CO2
Questo appartamento si trova a Castiglione delle Stiviere (46043).






