Quadrilocale di 137 m² a Vigonza (35010)
Caratteristiche
Su questo quadrilocale a Vigonza (35010)
APPARTAMENTO 3 CAMERE CON TERRAZZO ABITABILE - SAN VITO - VIGONZA (PADOVA)
Dove ogni giorno sa di casa, e ogni dettaglio parla di futuro.
In un elegante quartiere residenziale, immerso nella tranquillità ma a pochi minuti da tutti i servizi essenziali, nasce un nuovo progetto abitativo pensato per chi cerca uno stile di vita moderno, efficiente e di qualità superiore.
Due palazzine esclusive, composte ciascuna da sole 8 unità ciascuna, ospitano appartamenti di ultima generazione progettati con cura in ogni dettaglio.
Inizio lavori: Luglio 2025
Consegna prevista: Dicembre 2026
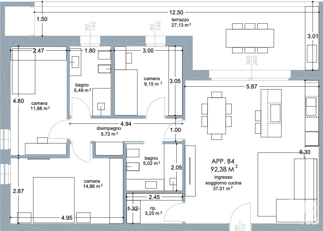
L'immobile si compone di:
- Zona giorno di 37 mq,
- Disimpegno di 5,72 mq
- Bagno finestrato di 5,50 mq,
- Bagno cieco di 5 mq,
- Camera matrimoniale di 14,86 mq,
- Camera di 11,88 mq,
- Camera di 9,15 mq
- Lavanderia di 3,25 mq
- Terrazzo di 27,13 mq
- Garage + ripostiglio di 24,37 mq
- N 2 posti auto scoperti
Il totale della superficie calpestabile è di 92 mq e la sua esposizione è NORD-OVEST
Contattaci per scoprire in anteprima questo progetto esclusivo e le altre proposte!
Pertinenze
Interno
Altro
Classificazione energetica
Efficienza Energetica:
Questo appartamento si trova a Vigonza (35010).






