Villa Bifamiliare 4 locali di 90 m² a Guidonia Montecelio (00012)
Caratteristiche
Su questo quadrilocale a Guidonia Montecelio (00012)
Guidonia Montecelio, Marco Simone - Villetta a schiera con affaccio sul parco
Proponiamo in vendita una villetta a schiera su due livelli, ideale per chi cerca tranquillità, indipendenza e comfort, a pochi minuti dai principali servizi ma lontano dal caos cittadino.
Una soluzione di nuova costruzione, perfetta per famiglie e coppie che desiderano una qualità di vita elevata in un contesto residenziale riservato.
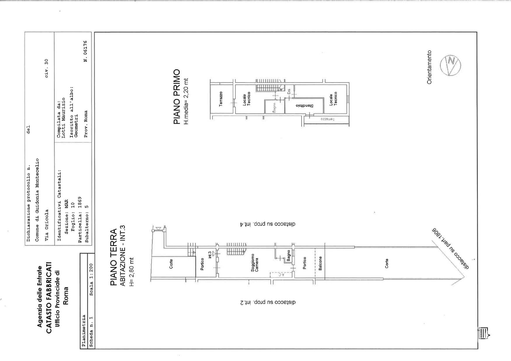
L’ingresso si apre su un ampio salone con angolo cottura, ambiente accogliente e luminoso grazie alle ampie vetrate che garantiscono luce naturale per gran parte della giornata.
Completano il piano terra un pratico bagno di servizio e l’accesso diretto al giardino privato sul retro, ideale per pranzi all’aperto, momenti di relax o giochi con i bambini.
La presenza di due portici, uno frontale e uno sul retro, consente di godere di spazi esterni vivibili in ogni stagione.
Il piano superiore è dedicato alla zona notte, composta da tre camere da letto e un bagno. Gli ambienti sono ben distribuiti per garantire privacy e funzionalità.
Una delle camere affaccia su un parco privato di ulivi, offrendo un panorama rilassante e un contatto diretto con la natura.
Caratteristiche principali
•Classe energetica B: efficienza, risparmio e attenzione all’ambiente
•Nuova costruzione, finiture curate
•Contesto residenziale tranquillo, lontano da traffico e rumori
•Doppio spazio esterno con portici e giardino privato
•Ottima esposizione e luminosità
•Possibilità di mutuo a tassi agevolati, grazie alla certificazione green dell’immobile
Questa proprietà rappresenta un’opportunità rara in una zona ad alta richiesta, con disponibilità limitate.
Se stai cercando una casa pronta da abitare, con spazi ben organizzati e un contesto che valorizza il benessere quotidiano, questa è la soluzione giusta.
Contattaci per fissare una visita.
Lasciati conquistare dalla serenità e dalla qualità della vita che solo questa casa può offrire. Il tuo nuovo inizio potrebbe cominciare qui.
Pertinenze
Esterno
Altro
Classificazione energetica
Efficienza Energetica:
Questo appartamento si trova a Guidonia Montecelio (00012).

















