Terreno di 2.170 m² in Potenza Picena (62018)
Su questo terreno a Potenza Picena (62018)
Terreno edificabile – Contrada Redefosco, Potenza Picena (MC)
Con progetto già approvato per realizzazione casa singola su unico livello
In Contrada Redefosco, a pochi minuti dal centro di Potenza Picena e dal mare di Porto Potenza, proponiamo in vendita terreno edificabile di circa 2170 metri in posizione collinare e panoramica, immerso nel verde ma non isolato.
La zona è tranquilla, residenziale e servita, con villette e abitazioni indipendenti nei dintorni, accessibile da strada asfaltata e ben collegata alle principali vie di comunicazione: SS16 Adriatica e autostrada A14 (uscite Civitanova Marche o Loreto–Porto Recanati).
Caratteristiche principali:
Posizione collinare con vista aperta sulla campagna marchigiana
Esposizione ottimale e ottima luminosità per tutto il giorno
Contesto piacevole e silenzioso, ideale per villa singola
Servizi e scuole a pochi minuti di distanza
Mare raggiungibile in 10-15 minuti d’auto
Accesso agevole da strada comunale;
Servizi e scuole a pochi minuti;
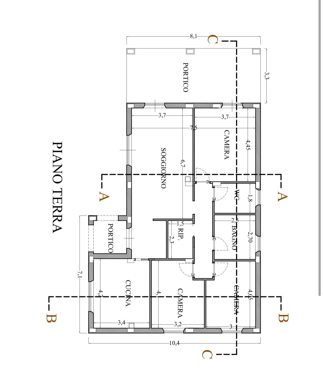
Il progetto prevede la realizzazione di un abitazione disposta su un unico livello per una metratura abitativa di circa 90 mq con aggiunta di un portico di circa 38 mq, per una metratura complessiva di circa 128 mq.
Il progetto prevede un abitazione composta da cucina abitabile, ampio salone, 3 camere e 2 bagni.
L'annuncio contiene render a pure scopo illustrativo.
Visita il mio sito https://www.alessiocarusoimmobiliare.com per rimanere aggiornato sul mercato immobiliare!
Pertinenze
Esterno
Altro
Questo terreno si trova a Potenza Picena (62018).

