Trilocale di 107 m² a Arenzano (16011)
Su questo trilocale a Arenzano (16011)
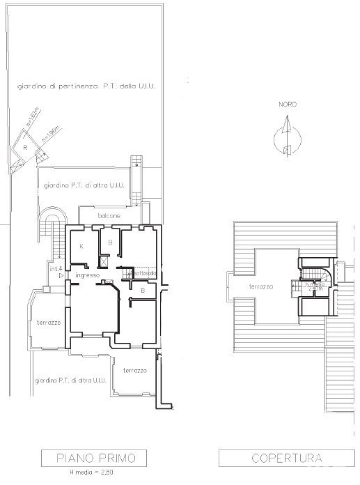
Appartamento in villino con giardino, terrazza al piano, vista mare, due camere, cucinino, soggiorno, due bagni, terrazzo panoramico di copertura e doppio posto auto coperto
Nel cuore esclusivo della Pineta di Arenzano, e più precisamente nel prestigioso Quadrifoglio, ti attende una casa che non è semplicemente pronta da vivere: è pronta ad accoglierti. Qui, dove la quiete del contesto si unisce alla sicurezza e al verde del comprensorio, ogni rientro diventa un momento di pace. Che tu cerchi una seconda casa per le tue vacanze o un rifugio sereno per la vita quotidiana, questo è il luogo in cui ricaricare davvero le energie.
All’interno, gli spazi sono studiati con intelligenza: nessun eccesso, nessuno spreco, solo equilibrio e comfort. La zona giorno, affacciata a ovest, è un abbraccio di luce: il cucinino guarda le colline e si apre sul giardino privato, mentre il soggiorno – con l’uscita sul terrazzo – dirige lo sguardo verso il mare. La zona notte, riservata e silenziosa, si sviluppa a est: la camera matrimoniale dispone di bagno privato e accede a un ampio terrazzo vista mare; la seconda camera e il bagno principale si affacciano invece sul verde dei monti e sul giardino.
Ma il vero valore aggiunto di questa casa è rappresentato dagli spazi esterni, ampi, versatili, luminosi. È facile immaginare i pomeriggi estivi all’ombra del corbezzolo, protetti dalla siepe, o una cena di famiglia sul terrazzo del soggiorno, mentre la luna si riflette sul mare. E ancora, il terrazzo panoramico di copertura: una vera oasi privata dove godersi un barbecue tra amici, un pranzo all’aperto nelle prime giornate di primavera o un raggio di sole nelle tiepide mattinate d’inverno che solo la Liguria sa regalare.
Un equilibrio perfetto tra indipendenza, comodità e prestigio: la libertà di un villino, la praticità di un appartamento, l’eleganza di un contesto esclusivo. Completano la proprietà due posti auto coperti, un vero valore in Pineta.
Un’opportunità rara, da cogliere senza esitazioni. Le case così, qui, non restano a lungo.
Vuoi davvero lasciartela scappare? Contattami subito e vieni a scoprire dal vivo la tua nuova vita vista mare.
Pertinenze
Altro
Classificazione energetica
Efficienza Energetica:
Questo appartamento si trova a Arenzano (16011).










