Trilocale di 127 m² a Assisi (06081)
Caratteristiche
Su questo trilocale a Assisi (06081)
Assisi, appartamento su due livelli con terrazzo e posto auto a pochi passi dalla Basilica di Santa Maria degli Angeli
Proponiamo in vendita un elegante appartamento, ottime condizioni ,disposto su due livelli, situato al primo piano di una palazzina in posizione strategica a Santa Maria degli Angeli, nel comune di Assisi.
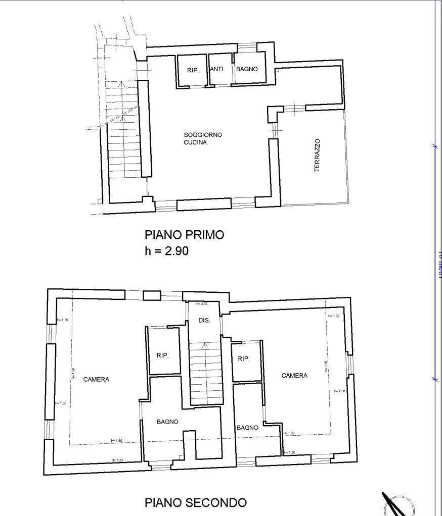
L'immobile è così composto:
Piano primo:
Ampio salone con angolo cottura, comodo ripostiglio, bagno, terrazzo di 24 mq dotato di impianto di irrigazione, tenda da sole, ideale per momenti di relax
Piano secondo: Due ampie camere da letto matrimoniali ,entrambe sono dotate di bagno interno e cabina armadio
Caratteristiche : Riscaldamento autonomo a pavimento , condizionatori, Caldaia a gas ,
Parquet .Impianto elettrico a norma certificato . Posto auto di pertinenza
📍 Posizione strategica:
A soli 5 minuti a piedi dalla Basilica di Santa Maria degli Angeli
Vicinissimo alla stazione ferroviaria di Assisi
In prossimità di tutti i principali servizi: supermercati, fermate bus, farmacie, ristoranti
Soluzione ideale sia per famiglie che desiderano ampi spazi e comfort, sia come investimento per attività ricettive (B&B o affitti brevi), grazie alla forte attrattiva turistica della zona.
Ottima distribuzione degli spazi
Tripla esposizione
Bagno in entrambe le camere da letto
Terrazzo vivibile
Corte di pertinanza di 32 mq al piano terra con la possibilita' di parcheggiare
Zona centrale ben collegata
📞 Contattaci per maggiori informazioni o per fissare una visita.
Pertinenze
Esterno
Altro
Classificazione energetica
Efficienza Energetica:
Questo appartamento si trova a Assisi (06081).











