Trilocale di 70 m² a Desenzano del Garda (25015)
Su questo trilocale a Desenzano del Garda (25015)
Desenzano Del Garda – appartamento trilocale con balconi. In zona tranquilla e ben servita, proponiamo in vendita un moderno appartamento trilocale inserito in una palazzina elegante con ascensore e piscina condominiale. La posizione è strategica, con rapido accesso alla tangenziale, all’autostrada e alla stazione ferroviaria.
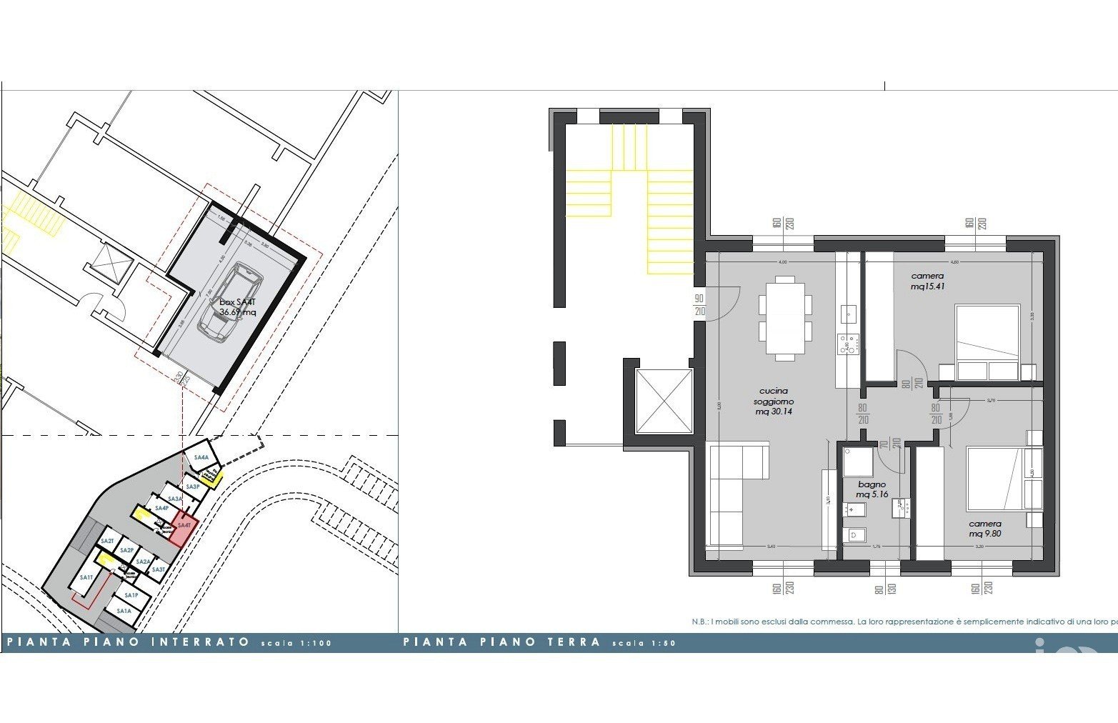
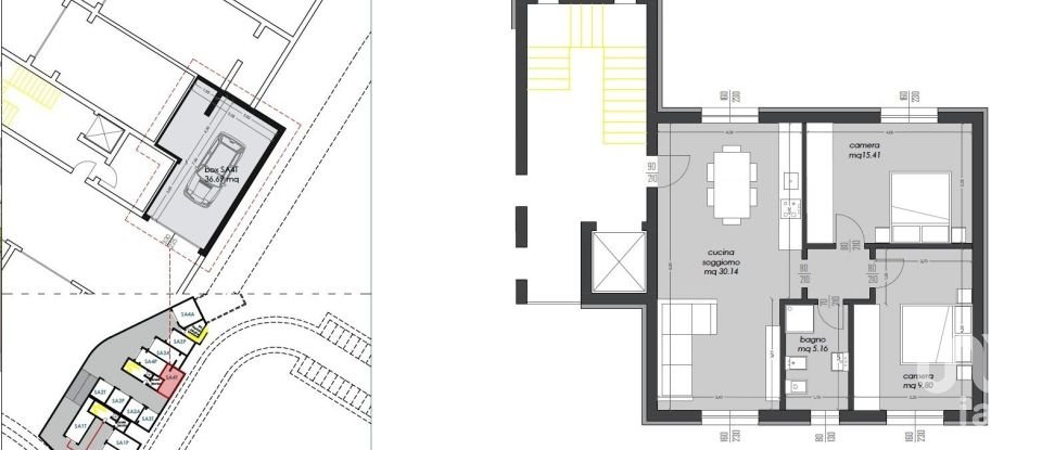
L’appartamento, di circa 70 mq, è impreziosito da un terrazzo di circa 15 mq, uno spazio esclusivo perfetto per vivere all’aperto. Completa la proprietà un box auto nell’interrato di circa 36 mq.
Composizione interna: ingresso dal vano scale condominiale, luminoso soggiorno con cucina a vista, due bagni, soggiorno con zona cucina a vista, 2 bagni, e una camera da letto matrimoniale e 2 balconi. Gli appartamenti sono disponibili al primo o al secondo piano.
Il prezzo si riferisce al singolo appartamento comprensivo di box auto, con oneri di acquisto a parte. La vendita è diretta da impresa edile, sinonimo di qualità e garanzia.
Classe Energetica A4 – 11,00 Kw/m²a
Un’opportunità ideale per chi sogna una casa moderna, efficiente e con un terrazzo di rara ampiezza, arricchita dal comfort di una piscina condominiale, nel cuore di Desenzano del Garda.
Le informazioni riportate sono corrette ma non costituiscono vincolo contrattuale.
Contattateci senza impegno per ricevere ulteriori dettagli o per prenotare una visita a questo appartamento a Desenzano del Garda.
Pertinenze
Altro
Classificazione energetica
Efficienza Energetica:
Questo appartamento si trova a Desenzano del Garda (25015).







