Trilocale di 82 m² a Jesolo (30016)
Caratteristiche
Su questo trilocale a Jesolo (30016)
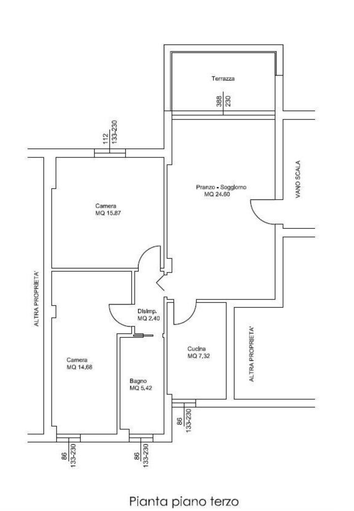
Jesolo Via A. Bafile – Appartamento vista Mare con Terrazza Abitabile
Se stai cercando un angolo di relax a due passi dalla spiaggia e da Piazza Mazzini o un investimento sicuro nel cuore di Jesolo , questa è la soluzione perfetta.
Situato al terzo piano con ascensore in uno stabile prospiciente il mare, l’appartamento vanta una splendida terrazza abitabile da cui godersi colazioni vista mare e serate in totale tranquillità.
Internamente offre spazi comodi e ben distribuiti:
Luminoso soggiorno
Cucina separata
Bagno con doccia
Due ampie camere matrimoniali
L’immobile inoltre è stato completamente rinnovato negli anni 2000 a livello di:
Impianti
Infissi
Pompa di calore
e si presenta oggi in ottime condizioni, pronto per essere vissuto da subito.
In più: il condominio è in fase di riqualificazione delle facciate e delle parti comuni, un intervento che ne accrescerà ulteriormente l’appeal e il valore nel tempo.
Perfetto come casa al mare
Ideale come investimento da mettere a reddito
Posizione esclusiva: a 2 passi dalla spiaggia
Contattaci per maggiori informazioni o per fissare una visita!
Pertinenze
Interno
Altro
Classificazione energetica
Efficienza Energetica:
Questo appartamento si trova a Jesolo (30016).




