Trilocale di 110 m² a Limena (35010)
Caratteristiche
Su questo trilocale a Limena (35010)
APPARTAMENTO NUOVA COSTRUZIONE – PIANO TERRA CON GIARDINO ESCLUSIVO
Se stai cercando una casa moderna e dotata di tutti i comfort, questo splendido trilocale di nuova costruzione è la soluzione perfetta per te!
Situato all’interno di un residence esclusivo composto da 14 unità, offre un ambiente curato e innovativo, con prestazioni energetiche eccellenti grazie alla classe A4.
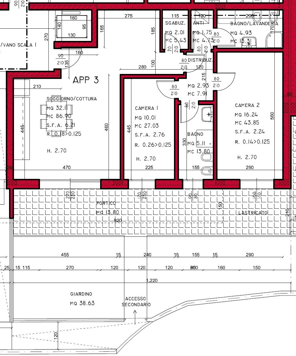
L’appartamento si trova al piano terra e dispone di un ampio soggiorno con zona cottura, due camere da letto, due bagni, un comodo ripostiglio e un bellissimo giardino privato, perfetto per godere di momenti all’aperto in totale relax. Completano la proprietà un garage con basculante motorizzato e un posto auto.
DOTAZIONI TECNOLOGICHE:
🔹 Tapparelle in alluminio motorizzate e serramenti in legno per un perfetto isolamento
🔹 Isolamento a cappotto per una massima efficienza energetica
🔹 Riscaldamento a pavimento con termostati indipendenti in ogni stanza
🔹 Pompa di calore e impianto di climatizzazione
🔹 Ricircolo d’aria forzata (VMC) per un ambiente sempre sano
🔹 Impianto fotovoltaico da 3 kW (con possibilità di ampliamento e predisposizione per batterie di accumulo)
🔹 Predisposizione per impianto d’allarme per la massima sicurezza
🔹 Ascensore per un accesso comodo e senza barriere
Rif. Limena 2/3
PER TUTTI I DETTAGLI, approfondimenti sul capitolato, visite all'immobile e/o conoscere il costruttore CONTATTATECI SENZA IMPEGNO al 339 3652348
Ricordiamo che per motivi di Privacy, l'indirizzo e il puntatore nella mappa, anche se molto vicini, non corrispondono esattamente all'ubicazione dell'immobile.
Pertinenze
Interno
Esterno
Altro
Classificazione energetica
Efficienza Energetica:
Questo appartamento si trova a Limena (35010).











