Trilocale di 110 m² a Milano (20126)
Caratteristiche
Su questo trilocale a Milano (20126)
LA CONSEGNA SI AVVICINA - NUOVI ELEGANTI APPARTAMENTI - ULTIME DISPONIBILITA' - GIUGNO 2026
La costruzione procede veloce e la consegna per Giugno 2026 si avvicina. A disposizione ultimi appartamenti ancora personalizzabili.
Immergiti in uno spazio di autentico benessere urbano, scoprendo le nuove residenze di Soffredini 47 e la tranquillità di un quartiere residenziale in connessione con il cuore di Milano.
Potrai scegliere la casa dei tuoi sogni tra varie unità abitative di diverse metrature, con ambienti moderni e confortevoli, innovativi ed eleganti, in grado di soddisfare le esigenze di ognuno, per un rifugio di pace in un contesto cittadino.
Nella presente scheda vi presentiamo:
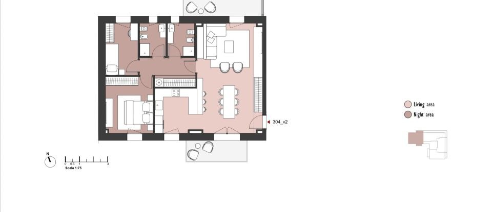
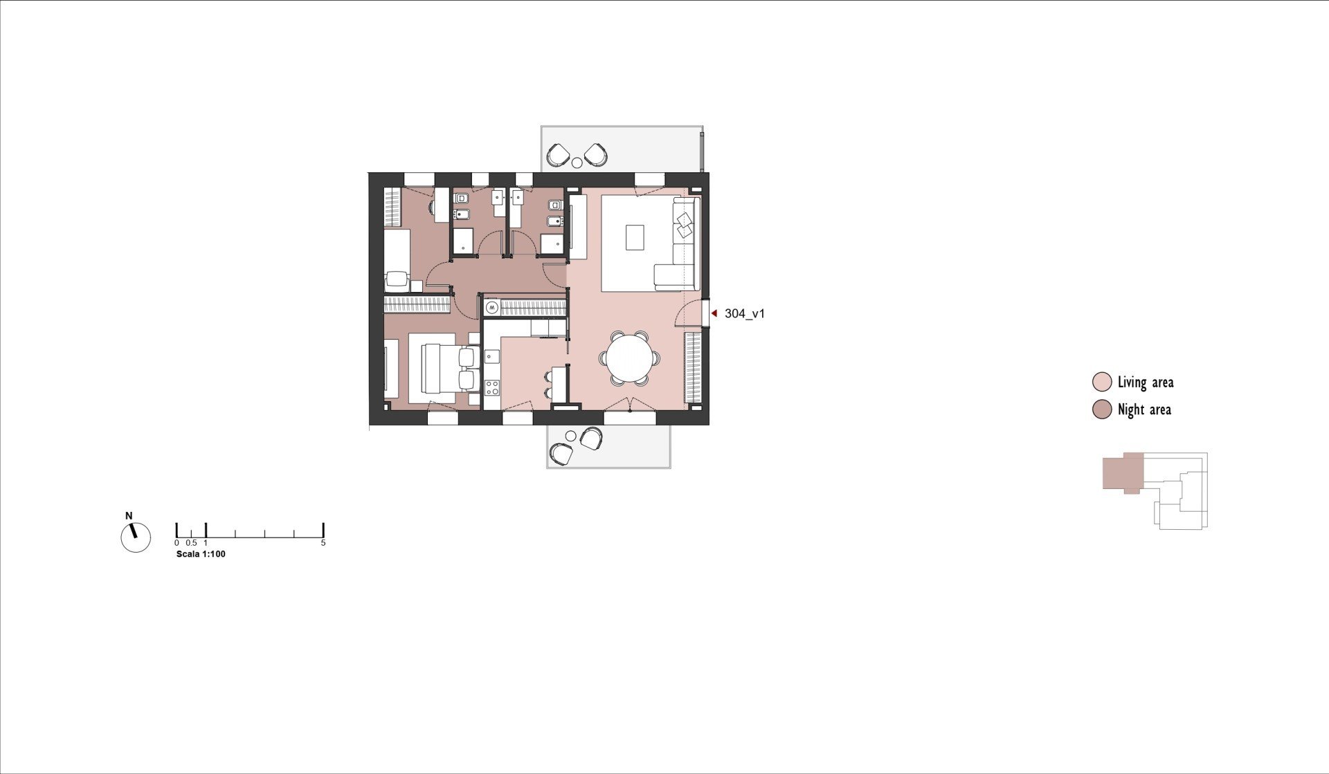
Rif. 304: splendido trilocale doppia esposizione e balcone caratterizzato da una doppia zona living e cucina abitabile o a vista con isola oltre a zona ripostiglio/lavanderia, doppi servizi e due camere.
L'operazione prevede la realizzazione di 20 appartamenti, con disponibilità di box auto e cantina, progettati per garantire comfort e funzionalità.
L'edificio è costruito con tecniche di alto livello e realizzato con una particolare attenzione alla sostenibilità e al risparmio energetico. Soffredini 47 offre infatti le massime performance in termini di efficienza energetica, isolamento acustico e costruzione antisismica. Per rendere l'edificio ancora più sostenibile sotto il profilo energetico, verrà installato un impianto fotovoltaico in copertura.
Dai graziosi bilocali, agli ampi trilocali fino ai meravigliosi quadrilocali, le abitazioni di Soffredini 47 sono definite “tailor-made”, in quanto progettate per essere versatili e funzionali: sarà possibile trovare la residenza che più si addice al proprio stile di vita, alla propria personalità e alle proprie esigenze.
Gli appartamenti presentano ampi outdoor living arredabili e abitabili e zone notte in cui regna la massima privacy.
La facciata è caratterizzata dai meravigliosi "bow window" che, oltre a essere una finestra sul mondo esterno, rappresentano un'oasi di serenità intima e personale in cui rilassarsi, magari leggendo un buon libro.
Ogni appartamento è provvisto di videocitofono touch-screen e dotato di riscaldamento autonomo a pavimento, oltre a raffrescamento regolabile per ogni ambiente.
Le abitazioni sono impreziosite da un capitolato di pregio caratterizzato da materiali naturali, come il parquet di rovere e il gres porcellanato, che con le loro nuance delicate e le texture materiche creano ambienti dall'estetica curata nel dettaglio.
In posizione strategica, nel cuore di Villa San Giovanni, Soffredini 47 si trova a pochi passi dall'omonima fermata della metro M1, che permette di raggiungere il centro e il resto della città in pochi minuti. La costruzione è ubicata in un'area residenziale e in forte espansione, ricca di servizi, piste ciclabili, trasporti pubblici.
La zona rappresenta inoltre un importante polo culturale, grazie alla presenza dell'Università Bicocca e del celebre Hangar Bicocca, dove vengono esposte le opere di famosi artisti.
Pertinenze
Altro
Classificazione energetica
Efficienza Energetica:
Questo appartamento si trova a Milano (20126).











