Trilocale di 90 m² a Porto Sant'Elpidio (63821)
Caratteristiche
Su questo trilocale a Porto Sant'Elpidio (63821)
APPARTAMENTO IN VENDITA ZONA CORVA - PORTO SANT'ELPIDIO
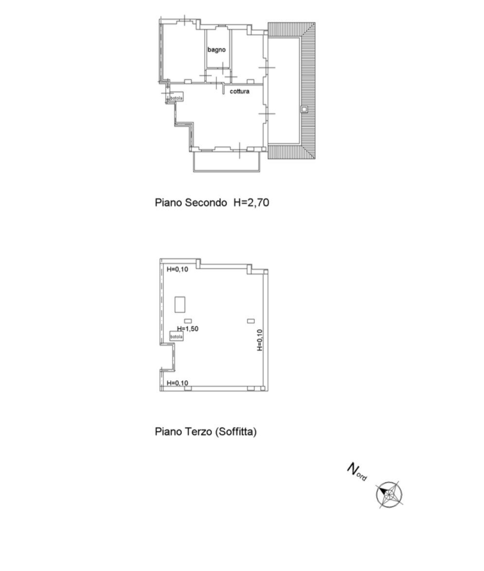
A pochi passi dalla piazzetta principale del quartiere Corva, proponiamo in vendita un appartamento al secondo e ultimo piano di una palazzina del 2009 servita da ascensore. L’immobile, ben tenuto e particolarmente luminoso, gode di una posizione tranquilla e panoramica con vista .
L’abitazione si sviluppa su circa 70 mq ed è composta da una zona giorno con cucina a vista e soggiorno affacciato sul terrazzo, ideale per pranzi all’aperto o momenti di relax. La zona notte include una camera matrimoniale, una cameretta e un bagno finestrato. Completano la proprietà un balcone laterale, una soffitta grezza accessibile da scala retrattile e un garage pavimentato di 24 mq con attacco per la lavatrice.
L’immobile è dotato di porta blindata, infissi in legno con doppio vetro, persiane in PVC, riscaldamento autonomo con termosifoni a parete e predisposizione per aria condizionata sia nella zona giorno che nelle camere. Il condominio è composto da soli 7 appartamenti, senza lavori straordinari deliberati.
Soluzione perfetta per chi cerca una casa accogliente, con sfogo esterno e pronta da abitare, in una delle zone più servite e tranquille di Porto Sant’Elpidio.
Per ulteriori informazioni o per fissare una visita, non esitare a contattarci!
Pertinenze
Esterno
Altro
Classificazione energetica
Efficienza Energetica:
Questo appartamento si trova a Porto Sant'Elpidio (63821).








