Nuovo In Esclusiva
Trilocale di 80 m² a San Felice sul Panaro (41038)
98.000 €
1.225 €/m²
80 m²
3 locali
2 camere da letto
2 bagni
Su questo trilocale a San Felice sul Panaro (41038)
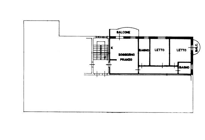
Trilocale al primo piano di ampie metrature con due bagni.
L'Agenzia immobiliare Risiko di Mirandola propone in vendita a San Felice trilocale con ampia zona giorno al primo piano. L'appartamento, posto al primo piano senza ascensore è composto da ingresso in soggiorno con angolo cottura e balcone, disimpegno notte, due camere da letto e due bagni. L'appartamento non dispone di garage, ma di un posto auto di proprietà. PERCHE' ACQUISTARE L'IMMOBILE: -Ampia zona giorno -Piano comodo -Doppi servizi
Riferimento: 150686
Pertinenze
Esterno
Garage
Altro
Anno di costruzione: 1980
Numero di piani dell'edificio: 4
Classificazione energetica
Efficienza Energetica:
Proprietà ad alta efficienza energetica Proprietà a bassa efficienza energetica
Dove si trova l'immobile?
Questo appartamento si trova a San Felice sul Panaro (41038).
Immobili simili
Popover 1
Popover 2
Popover 3
Popover 4






