Trilocale di 80 m² a Tolentino (62029)
Caratteristiche
Su questo trilocale a Tolentino (62029)
Appartamento pari al nuovo nel cuore storico di Tolentino
Nel cuore del centro storico di Tolentino, all’interno di un elegante edificio d’epoca completamente ristrutturato dopo il sisma, proponiamo in vendita un appartamento situato al secondo e ultimo piano. L’immobile, attualmente in fase di ultimazione con consegna prevista per la primavera 2026, è da considerarsi pari al nuovo.
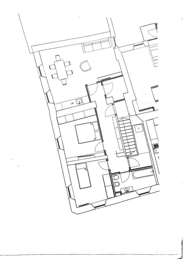
L’abitazione, di circa 80 mq, si compone di una luminosa zona living con cucina a vista, corridoio notte, una camera matrimoniale, una camera doppia e due bagni, di cui uno finestrato.
Completano la proprietà una cantina di 37 mq al piano terra e finiture moderne, come evidenziato dalle immagini rappresentative degli ambienti a lavori ultimati.
Un connubio perfetto tra fascino storico e comfort contemporaneo.
Per maggiori informazioni o per fissare un appuntamento contatta la nostra agenzia: saremo lieti di fornirti tutti i dettagli e accompagnarti nella visita dell’immobile.
Pertinenze
Altro
Questo appartamento si trova a Tolentino (62029).















