Trilocale di 70 m² a Torino (10145)
Caratteristiche
Su questo trilocale a Torino (10145)
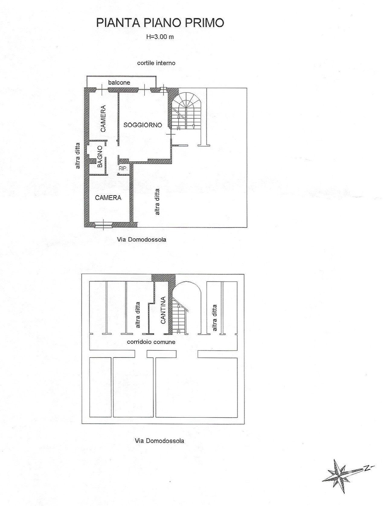
Proponiamo in vendita appartamento di 70 mq, situato al 1° piano di una palazzina ben curata e rivista nelle parti comuni.
L'immobile si presenta in buone condizioni ed è composto da un ampio soggiorno con angolo cottura, una spaziosa camera matrimoniale, una cameretta versatile che può essere utilizzata come studio o seconda camera, un bagno moderno, un comodo ripostiglio e un balcone vivibile. L'appartamento è inoltre dotato di aria condizionata sia nella zona giorno che nella camera matrimoniale, garantendo un comfort ottimale durante tutto l'anno. Completano la proprietà una cantina al piano interrato.
Una soluzione ideale per chi cerca una casa accogliente e ottimamente servita dai mezzi, infatti l'appartamento si trova a pochi minuti dalla fermata della metropolitana e dal parco della Pellerina.
Pertinenze
Altro
Questo appartamento si trova a Torino (10145).















