Exclusive
Apartment 6 rooms of 87 m² in Genova (16134)
€95,000
€1,092/m²
87 m²
6 rooms
2 bedrooms
1 bathroom
Features
Top Floor
About this apartment of 6 rooms at Genova (16134)
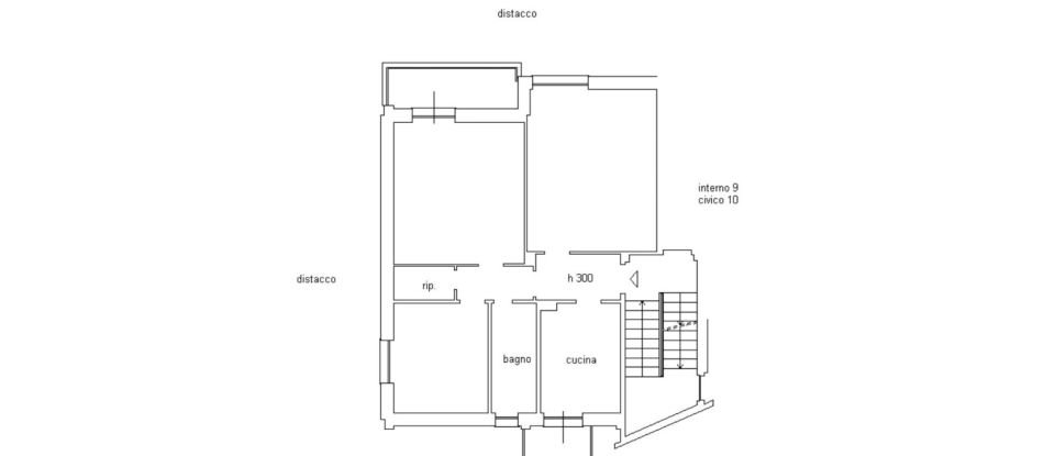
In Via Giovanni Boine 10, zona tranquilla e servita di Oregina, appartamento di 87 m² al terzo ed ultimo piano senza ascensore.
Luminoso, con doppia esposizione, balcone in cucina e balconata panoramica con scorcio mare.
Composto da ingresso, soggiorno, cucina abitabile, due camere, bagno, ripostiglio e cantina.
Buone condizioni generali, da rinnovare.
Riscaldamento centralizzato, spese contenute.
Ideale per chi cerca luce, silenzio e praticità a pochi minuti dal centro.
Reference: 149582
Equipments
Indoor
Optical fiber
TV plug
Other
Year of construction: 1950
Number of floors in the building: 3
Top Floor
Energy efficiency
Energy consumption :
Energy-efficient property Energy-inefficient property
Where is the property located?
This apartment is located at Genova (16134).
Similar properties
Popover 1
Popover 2
Popover 3
Popover 4






