Apartment 8 rooms of 126 m² in Verona (37131)
Features
About this apartment of 8 rooms at Verona (37131)
Appartamento con alta redditività o perfetto per viverci – Zona Est di Verona
Se cerchi un investimento solido o una casa accogliente pronta ad accoglierti, questo appartamento rappresenta un’opportunità unica nella zona est di Verona.
Situato al terzo ed ultimo piano di una palazzina di fine anni ’80, l’immobile offre spazi ampi, luminosi e ben distribuiti, ideali per chi desidera comfort e funzionalità.
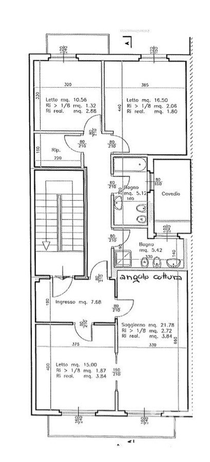
L’appartamento si compone di:
- Tre camere da letto (due matrimoniali e una doppia), perfette sia per studenti che per una famiglia;
- Due bagni finestrati;
- Zona giorno open space con sala da pranzo e cucina a vista, accogliente e vivibile;
- Due balconi, uno più ampio ed uno di servizio;
A creare ulteriore possibilità di trasformazione vi è anche un sottotetto al grezzo della lunghezza dell'appartamento collegato con accesso ad una piccola terrazza roof-top, uno spazio riservato e panoramico ideale per i momenti di relax.
Completano la proprietà un box auto di circa 8 m² e contratto di locazione flessibile (attualmente affittato a studentesse con rendita annua di €16.300, pari a una redditività lorda del 7%).
Il contratto si rinnova annualmente, offrendo la massima libertà a chi desidera mantenerlo come investimento o trasformarlo nella propria abitazione principale in tempi brevi.
Punti di forza:
* Zona tranquilla e ben servita, comoda ai principali poli universitari e ai mezzi pubblici;
* Ottimo rendimento immediato e possibilità di rivalutazione nel tempo;
* Ultimo piano con terrazza privata, un valore raro e ricercato.
Cosa aspetti? Non farti sfuggire questa opportunità, prenota la tua visita.
Equipments
Indoor
Outdoor
Other
This apartment is located at Verona (37131).

