Four-room apartment of 206 m² in Bregnano (22070)
About this four-room apartment in Bregnano (22070)
INTROVABILE APPARTAMENTO IN CONTESTO ESCLUSIVO
VISIBILE IN OPEN HOUSE: MANDA UNA RICHIESTA VIA MAIL O CHIAMA PER PRENOTARE IL TUO APPUNTAMENTO
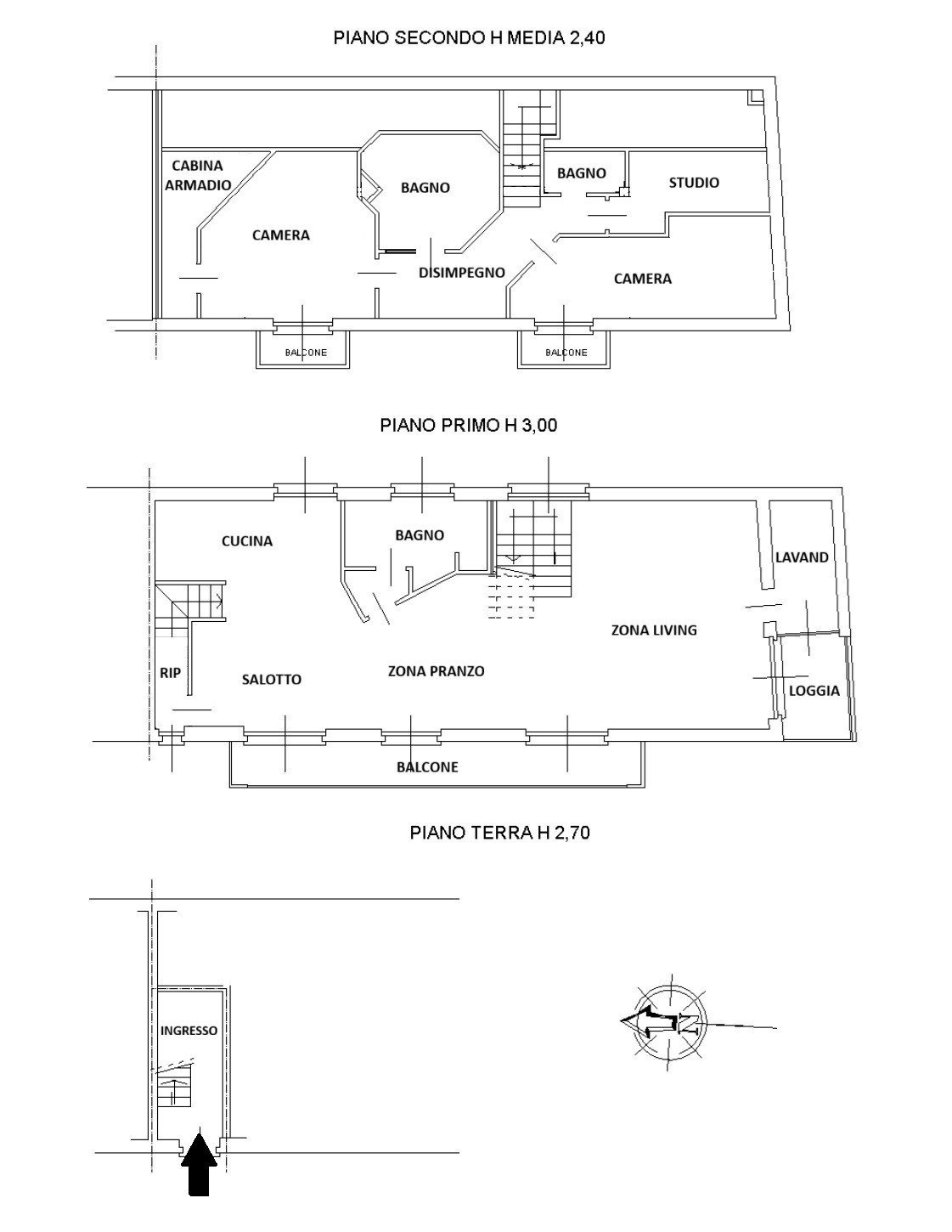
Bregnano centro, in esclusivo contesto d'epoca, ELEGANTE APPARTAMENTO DISPOSTO SU DUE LIVELLI con ingresso indipendente al piano terra. Si tratta di un alloggio completamente ristrutturato, con finiture eccellenti ed una distribuzione degli spazi con ambienti luminosi e tutti di generose dimensioni, SVILUPPA UNA SUPERFICIE TOTALE DI CIRCA 200 METRI QUADRATI. Si presenta in ottime condizioni, le immagini parlano da sole!
E' presente impianto di condizionamento ed alcuni dettagli dell'arredo, come le boiserie, le ante in legno a scomparsa, ecc... sono comprese nella vendita.
A completare la proprietà vi è uno spazio adibito a due posti auto, all'interno della proprietà.
Classe energetica "D" indice di prestazione energetica 118,59 kwh/mq anno
Prezzo di vendita € 335.000
Equipments
Other
Energy efficiency
Energy consumption :
This apartment is located at Bregnano (22070).





