House 13 rooms of 308 m² in San Salvatore Monferrato (15046)
Features
About this house of 13 rooms in San Salvatore Monferrato (15046)
Nel cuore del centro storico di San Salvatore Monferrato, a pochi passi dalla piazza principale, proponiamo in vendita un’abitazione di grande fascino e ampiezza, ideale come prima o seconda casa per chi cerca spazio, privacy e panorama.
- La proprietà, libera su due lati, si sviluppa su più livelli ed è caratterizzata da ambienti luminosi, soffitti alti e una straordinaria vista aperta sulle colline del Monferrato.
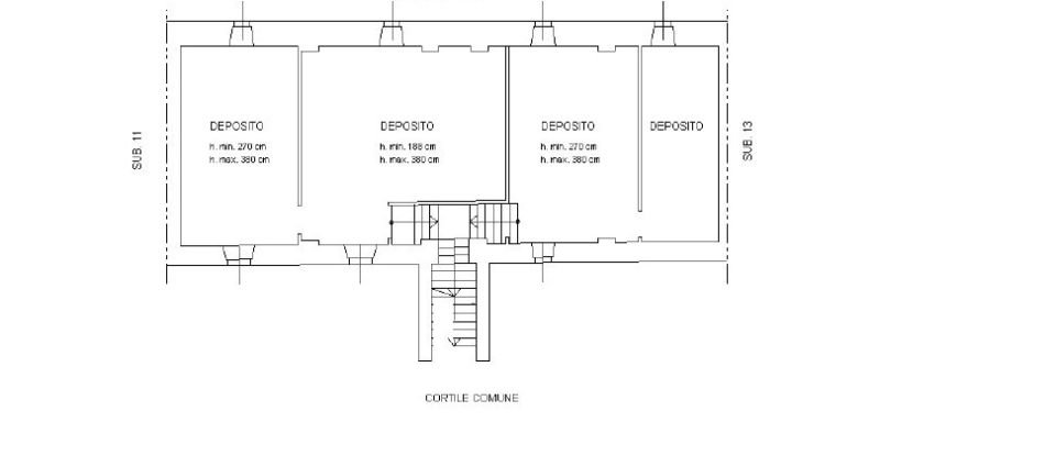
- Piano interrato: grande cantina tipica con volte in mattoni a vista e superficie pari a quella dell’abitazione, suggestiva e perfetta per vini, eventi o spazi di rappresentanza.
- Piano terra: ingresso principale su strada tramite portoncino blindato, salone, cucina su misura attrezzata, soggiorno con camino, due bagnetti di servizio, locale lavanderia e accesso diretto al cortiletto interno di circa 150 mq, curato e riservato, con portico e casetta per gli attrezzi.
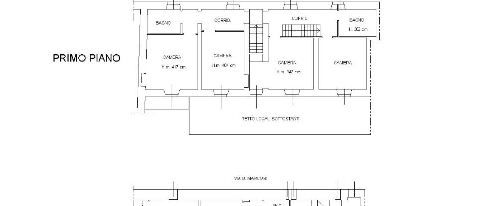
- Primo piano: doppia scala in marmo che conduce al piano notte, quattro camere da letto molto spaziose, corridoio centrale, due bagni e balconcino panoramico con vista mozzafiato sulle colline.
- Piano mansardato: due locali studio con accesso al sottotetto, ideali per hobby o smart working.
Pavimenti in marmo, porte interne di pregio in stile classico, infissi in legno con persiane e spazi generosi rendono questa abitazione accogliente e ricca di carattere. Pur non essendo abitata da alcuni anni, è stata mantenuta con cura e richiede solo interventi di aggiornamento e il ripristino dell’impianto di riscaldamento.
Punti di forza:
- straordinaria vista panoramica sul Monferrato;
- grande cantina storica con volte in mattoni;
- cortiletto interno di ca. 150 mq con casetta attrezzi;
- portoncino blindato, pavimenti e scale in marmo;
- spazi generosi e versatili, adatti anche a due nuclei familiari;
- posizione centralissima, a due passi da piazza e servizi.
Un’opportunità rara per vivere in una casa di ampio respiro, dal sapore autentico, immersa in uno degli scenari più suggestivi del Monferrato Alessandrino.
Equipments
Indoor
Outdoor
Other
Energy efficiency
Energy consumption :
This house is located in San Salvatore Monferrato (15046).

