Warehouse of 3,500 m² in Osimo (60027)
About this shop/premises commercial at Osimo (60027)
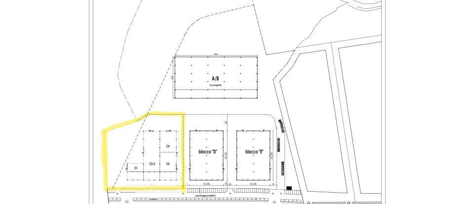
in località osimo Stazione, via crispi 36, si propone in vendita questo capannone industriale per la maggior parte a reddito.
Il fabbricato si colloca in zona industriale di recente sviluppo, servita da ampi spazi di urbanizzazione pubblica di transito e parcheggio, a pochi minuti dal casello Ancona sud.
La proprietà è completamente recintata e l'accesso dalla via pubblica è consentito da due accessi presidiati da cancello.
L'immobile, costruito a partire dal 2007 e completato nel 2012, è in struttura prefabbricata in c.a.p. con maglia strutturale principale 10 x 20 metri, altezza utile media 7,50 circa. La copertura è in tegoli alari con manto impermeabilizzante in alluminio.
La superficie coperta o di piano terra è di 2900 mq con piano primo ammezzato di 600 mq , collocato sulla facciata, per un totale di circa 3.500 mq utili.
L'immobile è diviso in 4 unità immobiliari di cui 3 locate. La quarta unità immobiliare (a cui si riferiscono le foto) di circa 920 mq utili, oggi facilmente riaffittabile, è attualmente inutilizzata in attesa di capire se puo' essere più funzionale per un acquirente investitore a cui interessi anche uno spazio produttivo da sfruttare per le proprie esigenze aziendali.
In copertura è installato un impianto fotovoltaico che produce una rendita derivante da vendita dell'energia ed incentivo Gse (4° conto energia).
chiamaci per ulteriori informazioni.
Equipments
Outdoor
Other
Energy efficiency
Energy consumption :
This shop/premises commercial is located at Osimo (60027).






