Sotto compromesso In Esclusiva
Trilocale di 70 m² a Genova (16127)
95.000 €
1.357 €/m²
70 m²
3 locali
2 camere da letto
2 bagni
Su questo trilocale a Genova (16127)
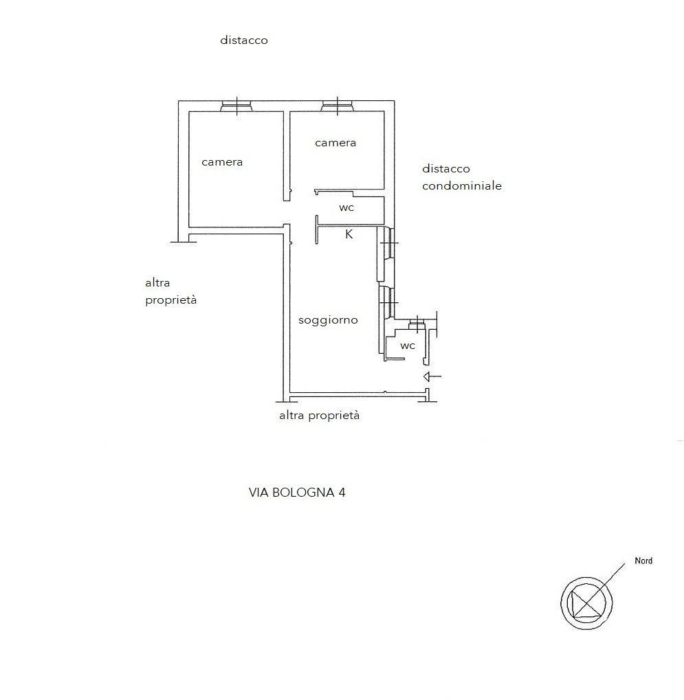
Genova, Via Bologna propongo in vendita trilocale ristrutturato.
Genova a 500mt dalla stazione della metropolitana di Genova Dinegro, a breve distanza dal Terminal Traghetti e comodo all’uscita dell’autostrada di Genova –Ovest, propongo in vendita splendido appartamento ristrutturato
Palazzina in ottime condizioni, dotata di ascensore e ben esposta, l’appartamento è molto silenzioso, soleggiato e gode di un gradevole scorcio di vista mare.
Dotato di tutti i comforts distribuito su circa 70 mq è composto da ingresso, salone open-space con angolo cottura, due camere da letto, e due bagni.
Riferimento: 143435
Pertinenze
Interno
Fibra ottica
Antenna TV
Altro
Anno di costruzione: 1950
Numero di piani dell'edificio: 6
Digicode
Classificazione energetica
Efficienza Energetica:
Proprietà ad alta efficienza energetica Proprietà a bassa efficienza energetica
Emissioni di CO2
Basse emissioni di gas serra Elevate emissioni di gas serra
Dove si trova l'immobile?
Questo appartamento si trova a Genova (16127).
Immobili simili
Popover 1
Popover 2
Popover 3
Popover 4



