Apartment 5 rooms of 90 m² in Olbia (07026)
About this apartment of 5 rooms at Olbia (07026)
Nuova proposta esclusiva a Olbia, Via Libano.
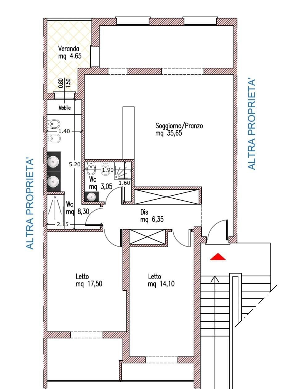
In una zona tranquilla e comoda ai servizi, a due passi dal centro e dal lungomare, proponiamo in vendita esclusiva un appartamento di 90 mq situato al primo piano di un condominio curato e silenzioso.
L’abitazione si distingue per la recente ristrutturazione e per gli ambienti luminosi e accoglienti.
È composta da: ingresso su ampio soggiorno con caminetto, cucina a vista con zona pranzo separata, due camere matrimoniali, di cui una con studiolo annesso, due bagni completi, utilissimo terrazzino dotato di lavandino, posto auto ad uso esclusivo.
Dotato di ogni comfort: riscaldamento autonomo a metano, climatizzazione, infissi a taglio termico, parquet, porta blindata e armadi a muro su misura. L’appartamento viene venduto parzialmente arredato. Spese condominiali minime.
Un’ottima soluzione per chi cerca comodità, stile e tranquillità in una delle zone più verdi e silenziose di Olbia.
Equipments
Other
Energy efficiency
Energy consumption :
This apartment is located at Olbia (07026).


