Apartment 5 rooms of 130 m² in Venaria Reale (10078)
Features
About this apartment of 5 rooms at Venaria Reale (10078)
In una delle zone più servite e richieste di Venaria Reale, proponiamo in vendita uno splendido appartamento su due livelli, situato in via Dante Alighieri. La posizione è strategica: comoda a tutti i principali servizi, alle scuole, ai mezzi pubblici e a pochi minuti dalla Reggia di Venaria, ideale per chi desidera vivere in un contesto tranquillo ma ben collegato.
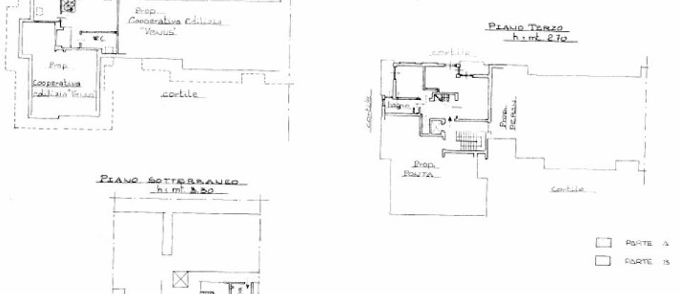
L’immobile si trova al terzo e quarto piano di uno stabile ben tenuto, servito da ascensore e circondato da un curato verde condominiale. Internamente, l’appartamento si compone al terzo piano di un’accogliente zona giorno con ingresso living su soggiorno, cucina abitabile e bagno. Al piano superiore, mansardato, si sviluppa la zona notte con due camere da letto e un secondo bagno.
Completano la proprietà una cantina al piano interrato e un comodo box auto. La soluzione si presenta ideale per famiglie o giovani coppie in cerca di comfort, spazio e una posizione privilegiata all’interno del comune di Venaria Reale.
Equipments
Other
This apartment is located at Venaria Reale (10078).



