Apartment 5 rooms of 145 m² in Casaloldo (46040)
About this apartment of 5 rooms at Casaloldo (46040)
In vendita – Accogliente appartamento a Casaloldo (MN)
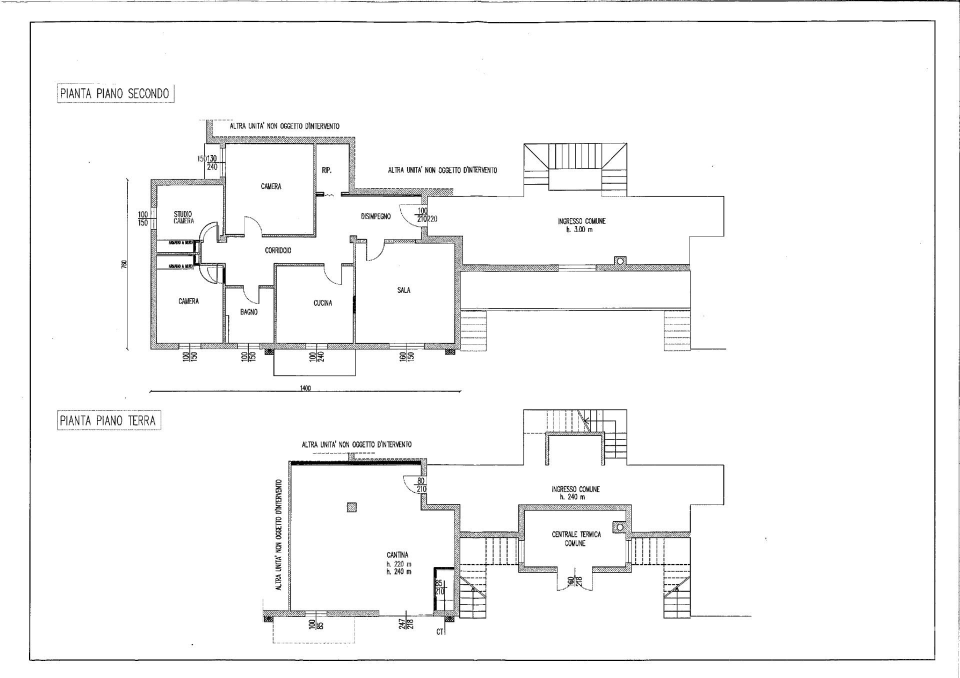
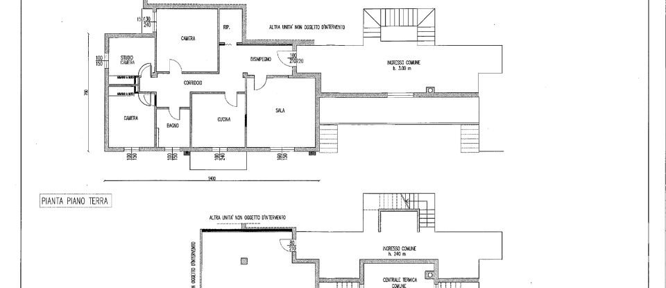
Nel cuore di Casaloldo (MN), in un contesto tranquillo e ben servito, proponiamo in vendita un luminoso appartamento situato al secondo piano di una palazzina curata composta da sole otto unità abitative.
Il paese, pur mantenendo il fascino e la quiete dei piccoli centri, offre tutti i servizi essenziali e si trova in posizione strategica, a soli 6 km da Asola, 5 km da Castel Goffredo e 27 km dal Lago di Garda, perfetto punto di partenza per raggiungere le principali località della zona.
L’appartamento si presenta con spazi ben distribuiti e un’atmosfera calda e accogliente:
•un ampio salotto, ideale per momenti di relax in famiglia,
•una cucina abitabile perfetta per pranzi e cene conviviali,
•una camera matrimoniale luminosa,
•una camera singola, adatta anche come stanza per ospiti,
•uno studio, ideale per chi lavora da casa,
•un pratico ripostiglio.
Al piano terra troviamo un grande garage, completo di zona lavanderia, comodo e funzionale.
A completare la proprietà, due porzioni di giardino privato, una sul fronte e una sul retro, dove godersi il relax all’aria aperta o coltivare qualche pianta.
Un’abitazione perfetta per chi desidera vivere in un ambiente sereno, con spazi comodi e tutti i comfort, senza rinunciare alla vicinanza dei principali centri.
Per maggiori informazioni contattaci!
Equipments
Other
Energy efficiency
Energy consumption :
This apartment is located at Casaloldo (46040).







