

€105,000
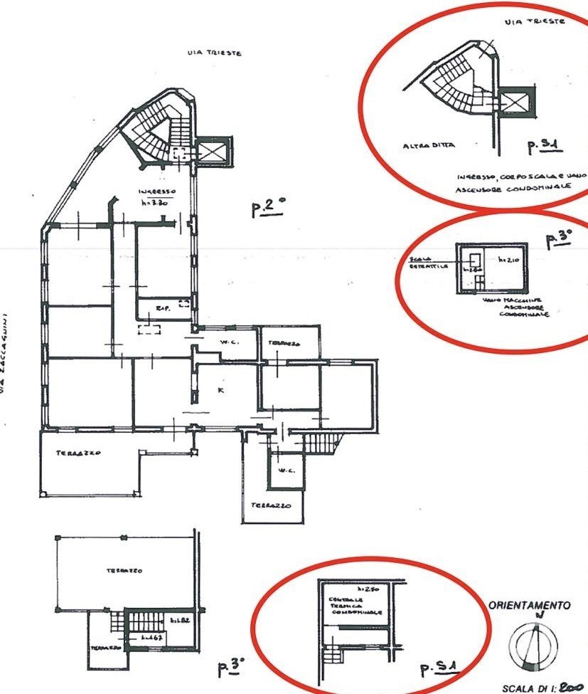
SUPER PREZZO !! Ultimo piano con ascensore e terrazzi, posto auto coperto e tanto potenziale – in palazzina anni ’60 senza condominio In una tranquilla via residenziale, all'interno di una palazzina degli anni ’60 composta da sole tre unità, si trova questo appartamento all’ultimo piano: una casa ampia, luminosa, con terrazzi che corrono lungo più lati e una vista aperta, pronta ad accogliere nuove idee, nuovi progetti, nuove storie. La metratura è davvero generosa – circa 247 mq interni – distribuiti in spazi ampi e funzionali. L’ingresso si apre su un disimpegno accogliente che conduce al cuore della casa: un salone doppio, perfetto per riunioni di famiglia o per chi ama vivere la zona giorno con stile e comfort. Accanto, una sala da pranzo separata e una grande cucina abitabile con una seconda zona pranzo. Tutti questi ambienti affacciano direttamente sui terrazzi, ideali per mangiare all’aperto o semplicemente rilassarsi al sole. La zona notte è ben separata e ospita tre camere matrimoniali, una cameretta/studio, due bagni finestrati e un comodo ripostiglio. A completare il tutto, una soffitta al piano superiore, collegata internamente all’appartamento: uno spazio oggi utilizzato come deposito, ma che può essere facilmente trasformato in una zona vivibile, magari uno studio, una stanza hobby, o una piccola area relax. Da qui si accede anche a un ulteriore terrazzo con una bellissima vista sul paese e sulle montagne. La casa è da ristrutturare, ma questo è anche il suo grande punto di forza: offre la possibilità di ripensarla completamente, adattandola alle tue esigenze e al tuo gusto personale. Chi ama il fascino delle case d’epoca potrà anche scegliere di mantenere alcune delle eleganti rifiniture originali, come i pavimenti in marmo o i dettagli in legno che raccontano lo stile degli anni ’60. Al momento, non è presente un impianto di riscaldamento tradizionale: il comfort termico è garantito da alcuni split già installati, che offrono una soluzione flessibile e moderna. Un altro elemento importante è il posto auto coperto, situato nel garage comune dello stabile – un plus non scontato in zona. Inoltre, non esiste un condominio formale: le spese comuni sono minime e si limitano alla luce delle scale e all’uso dell’ascensore. La gestione degli spazi comuni viene condivisa in modo semplice e diretto tra i proprietari. Grazie alla sua ampiezza e alla distribuzione attuale, l’appartamento si presta anche a un eventuale frazionamento in due unità abitative: perfetto per due nuclei familiari che desiderano restare vicini o per chi cerca una parte da vivere e una da mettere a reddito. La zona è comoda e ben servita: scuole, negozi, mezzi pubblici e tutti i principali servizi sono a portata di mano, ma il contesto rimane tranquillo e riservato. Per maggiori informazioni o per fissare una visita contattaci!
Ref: 150908
Energy performance diagnosis
D
195 kWh/m².year
Similar properties


