

€650,000
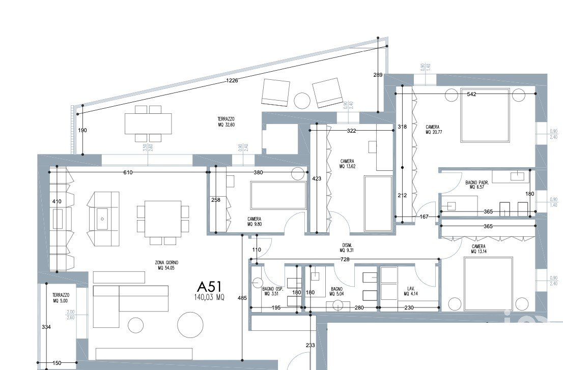
ATTICO 4 camere con terrazzo abitabile al piano quinto a due Passi dalle Mura di Padova Sei alla ricerca di una soluzione abitativa che unisca eleganza, comfort e tecnologia all'avanguardia? Gli appartamenti di nuova costruzione situati in una delle zone più esclusive e richieste di Padova, a pochi passi dalle storiche mura cittadine. L'immobile è così composto: - ZONA GIORNO 54,05 MQ - DISIMPEGNO 9,31 MQ - BAGNO OSPITI 3,51 MQ - BAGNO CIECO 5,04 MQ - LAVANDERIA 4,14 MQ - BAGNO PADRONALE 6,57 MQ - CAMERA 20,77 MQ - CAMERA 14,14 MQ - CAMERA 13,62 MQ - CAMERA 9,80 MQ - TERRAZZO 32,60 MQ - TERRAZZO 5,00 MQ - GARAGE 21,90 MQ - GARAGE 21,90 MQ Caratteristiche principali: - Finiture di alto livello. - Design moderno e funzionale, pensato per garantire il massimo del comfort e della vivibilità. - Ampi spazi luminosi, con grandi finestre che regalano una vista unica sulla città. - Tecnologie innovative per un'abitazione sempre più smart e sostenibile: domotica, riscaldamento a pavimento, impianti a basso consumo energetico. - Classe energetica A4 : Ottimizzazione dei consumi, massimo risparmio e rispetto per l'ambiente. Posizione strategica, ben servita da mezzi pubblici, negozi e scuole, con la comodità di vivere vicino al centro storico. La struttura è composta da 26 unità abitative di varie e ampie metrature, disposte su cinque piani fuori terra. Contattaci per avere maggiori informazioni
Ref: 133218
Energy performance diagnosis
A
Similar properties



