Hotel 6 rooms of 285 m² in Verona (37121)
About this apartment of 6 rooms at Verona (37121)
Eleganza senza tempo nel cuore di Verona
Nel cuore pulsante di Verona, tra le vie più iconiche del centro storico, si trova questo straordinario appartamento situato all’interno di un palazzo neogotico di grande fascino, sapientemente restaurato. Un luogo in cui la storia incontra il lusso contemporaneo, dove ogni dettaglio è stato studiato per coniugare comfort e raffinatezza.
L’abitazione, di ampie dimensioni e interamente ristrutturata nel 2012 con interventi di restauro di altissima qualità, si distingue per finiture pregiate, materiali autentici e un’eleganza senza tempo che avvolge ogni ambiente.
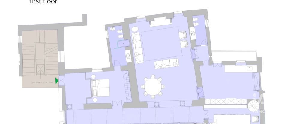
Gli interni
L’ingresso accoglie con immediata maestosità, rivelando la cura e la nobiltà dell’edificio.
Da qui si accede a un suggestivo corridoio–veranda, che affaccia su una silenziosa corte interna, arricchito da un’importante struttura lignea finemente restaurata, un raro esempio di architettura storica valorizzata con sensibilità moderna.
Il percorso conduce al cuore dell’abitazione: un salone di rappresentanza di circa 70 mq, dove la luce, le proporzioni e i dettagli decorativi creano un’atmosfera scenografica e accogliente. Il camino in marmo originale diventa il fulcro dello spazio, ideale per momenti conviviali o di puro relax.
La cucina e gli ambienti di servizio
Dal salone si accede a una cucina di design con balcone, luminosa e funzionale, impreziosita da un magnifico soffitto a cassettoni bianchi e oro e da un lampadario geometrico in ottone e vetro che fonde arte e modernità.
La cucina si completa con un’area pranzo e un bagno di servizio in marmo naturale, caratterizzato da superfici venate e dettagli dorati.
La zona privata
Un disimpegno introduce un’area più intima, oggi adibita a salotto TV, dove una scala elicoidale conduce a un soppalco riservato con camera, ampie armadiature su misura e bagno privato.
Lo spazio, curato in ogni dettaglio, offre versatilità e charme, perfetto come suite per ospiti o studio privato.
Le camere e i bagni
Complessivamente, l’appartamento dispone di cinque ampie stanze e quattro bagni di grande eleganza, rifiniti con marmi pregiati, specchiere dorate e rubinetterie di design.
Ogni ambiente riflette un equilibrio armonioso tra lusso, comfort e valore storico, creando un’atmosfera di esclusiva residenza d’epoca.
Comfort e dotazioni
Completano la proprietà la possibilità di acquistare fino a tre posti auto coperti, un vantaggio raro e prezioso in pieno centro storico.
In sintesi
Un appartamento unico nel suo genere, che racchiude l’anima aristocratica della Verona storica e la ricercatezza di una ristrutturazione contemporanea di alto livello.
Una dimora per chi desidera vivere la città da protagonista, tra arte, eleganza e comfort assoluto a pochi passi dall’Arena e dalle vie più prestigiose dello shopping.
Equipments
Other
Energy efficiency
Energy consumption :
This apartment is located at Verona (37121).



