Loft 9 rooms of 180 m² in Angri (84012)
Features
About this apartment of 9 rooms at Angri (84012)
An elegant penthouse in the heart of Angri, strategically located for easy access to Campania's most beautiful destinations, including Naples, the Sorrento Peninsula, the Amalfi Coast, Salerno, Ischia, and Capri.
If you want to live in the city center with all the amenities at your fingertips, we have the perfect opportunity for you!
Book your visit to the OPEN HOUSE on Saturday, October 25, 2025, from 10:00 AM to 12:30 PM.
CALL NOW TO MAKE AN APPOINTMENT AND RESERVE YOUR VIEWING.
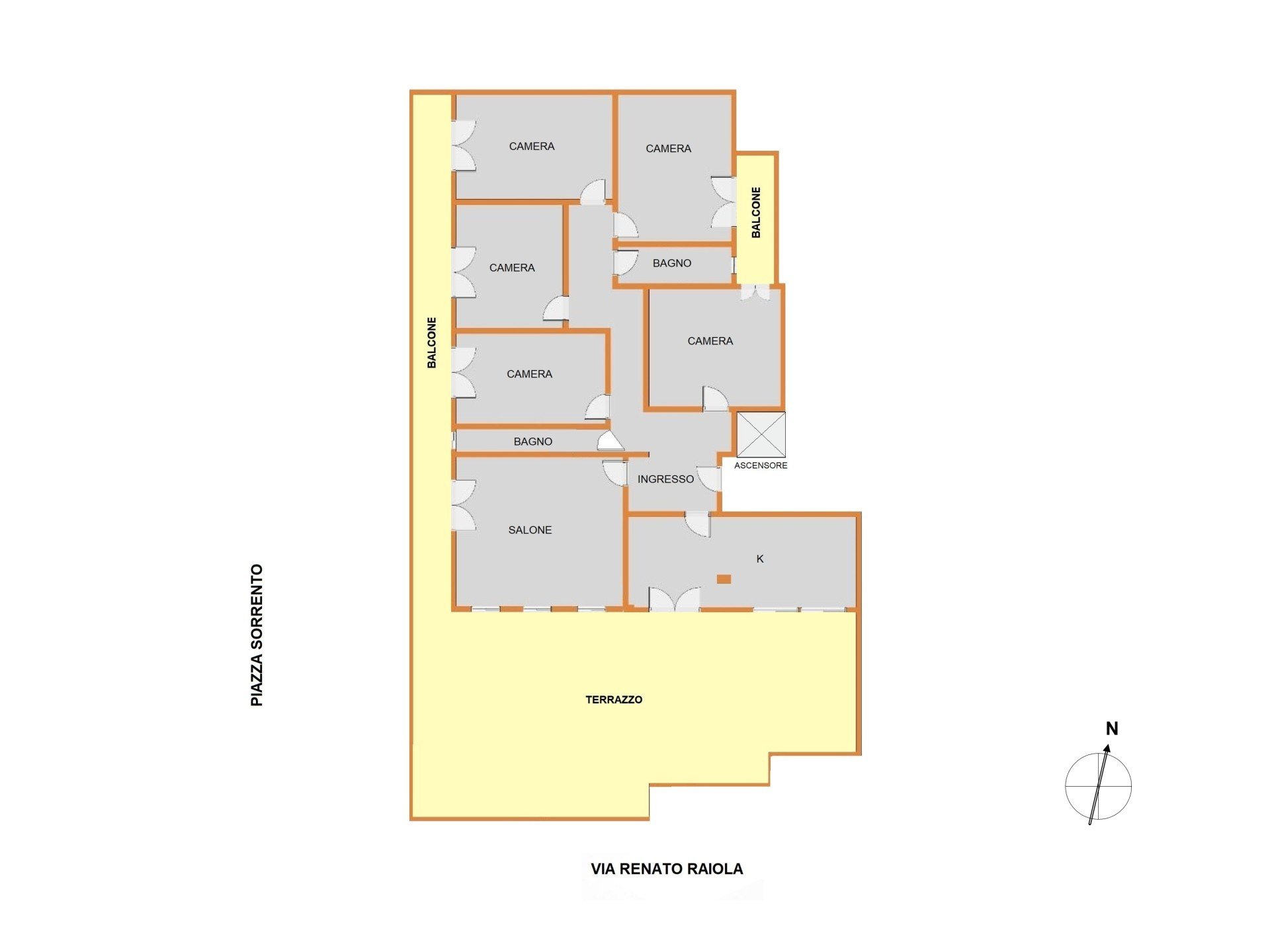
We offer a unique seventh-floor penthouse of 180 square meters with a large 85 square meter terrace and balconies, a 130 square meter attic on the eighth floor with a corresponding 40 square meter terrace, and a large 63 square meter garage in the basement, located on the corner of Piazza Sorrento and Via Renato Raiola, roads connecting various parts of the city.
Imagine living just steps from the renowned Doria Castle and the Villa Comunale Gardens. The area is a true hub, full of shops and just steps from public transportation and schools.
The penthouse is located in a 1970s condominium with an elevator.
Entering the seventh-floor apartment, you'll find a large entrance hallway, an eat-in kitchen with access to the terrace with panoramic views of the Lattari and Sarno Mountains, and additional panoramic balconies overlooking Mount Vesuvius. There are also 6 bedrooms and 2 bathrooms.
The communal staircase leads to the eighth floor, where the property features a comfortable and generous attic space of approximately 130 square meters, easily accessible in the central section with a height of approximately 2.30 meters, sloping downwards to approximately 1 meter in the lower section, as well as a level terrace of approximately 40 square meters, perfect for a recreational area, hobby room, and/or storage room.
The property includes a garage of approximately 63 square meters, which can easily accommodate 3-4 cars.
The entire property is habitable, although it requires renovation.
Overall, this penthouse offers a combination of space, location, and renovation potential, making it an attractive option for those seeking a detached and/or semi-detached property.
This is a unique opportunity for those seeking a home with a special soul, where light, open spaces, and the livability of the area blend in perfect harmony. A place to live, to love, and to transform into your own personal oasis in the city.
Equipments
Indoor
Outdoor
Other
Energy efficiency
Energy consumption :
This apartment is located at Angri (84012).

