Four-room apartment of 65 m² in Monte Porzio (61040)
About this four-room apartment in Monte Porzio (61040)
In vendita – Casetta a schiera con giardino e veranda a Monteporzio
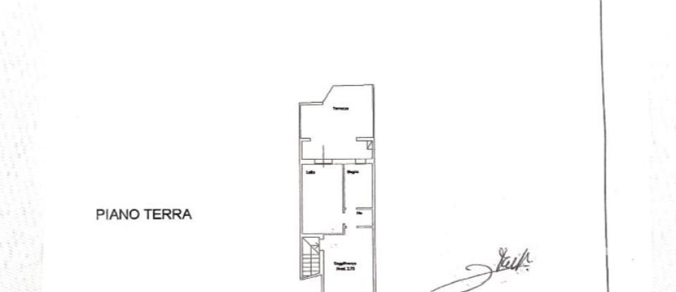
A Monteporzio, proponiamo in vendita una graziosa casetta a schiera di 65 mq in zona residenziale, accogliente e ben rifinita, ideale per chi cerca tranquillità e comfort.
Al piano terra si accede all’abitazione tramite un curato giardinetto privato, perfetto per godersi momenti all’aria aperta. L’ingresso conduce direttamente alla zona giorno open-space, composta da una cucina moderna e completamente arredata e da una confortevole area soggiorno-relax.
Dalla zona giorno si accede a una spaziosa veranda, ideale per pranzi e cene in compagnia. Grazie alla sua struttura, può essere eventualmente chiusa e trasformata in un’estensione della zona giorno.
Completa il piano un bagno comodo e funzionale.
Tramite un' elegante scalinata in marmo, si accede al piano sottostante dove troviamo una camera da letto matrimoniale con bagno privato, che garantisce privacy e riservatezza.
La proprietà include anche un garage.
Caratteristiche principali:
-Giardino d’ingresso privato
-Portone blindato ed infissi nuovi a triplo vetro con camera d'aria interna, ottima per mantenere il riscaldamento e i consumi limitati, cappotto esterno, zanzariere, riscaldamento autonomo metano città e termoconvettore, aria condizionata, caldaia nuova
-Cucina nuova e arredata. L'appartamento viene venduto parzialmente arredato
-Zona living con accesso a veranda
-2 bagni
-Camera da letto matrimoniale
-Garage incluso di 20 mq
-Veranda con possibilità di chiusura
-Vicina ai vari servizi principali, mezzi di trasporto, a pochi chilometri dal mare, da Marotta, Senigallia.
Il prezzo di vendita dell'immobile è di 89.000 € trattabili.
Per maggiori informazioni o per fissare una visita contattami!
Equipments
Outdoor
Other
Energy efficiency
Energy consumption :
This apartment is located at Monte Porzio (61040).





