

€520,000
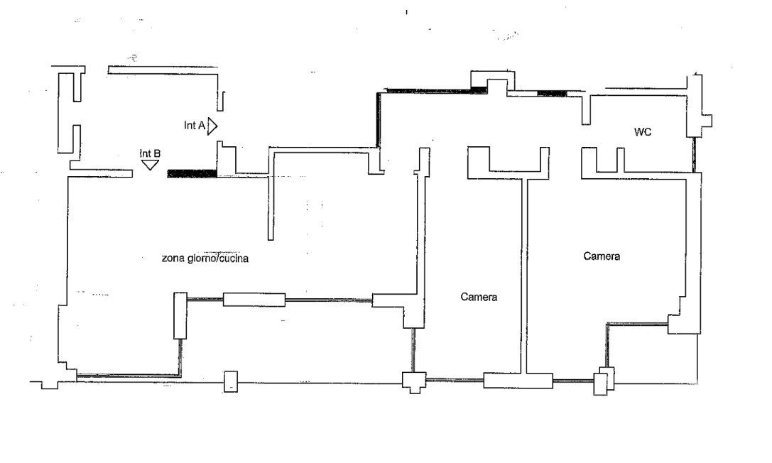
Immagina di vivere in una splendida casa di circa 120 mq, situata nel cuore di Nervi, uno dei quartieri più affascinanti di Genova. Questa proprietà si trova al terzo piano di un edificio dotato di ascensore, rendendo gli spostamenti comodi e senza stress. La casa offre una vista mozzafiato sul Promontori di Punta Chiappa perfetta per godersi panorami indimenticabili e l’atmosfera unica del Golfo di Genova. All’interno, troverai un ampio salone con zona cucina, ideale per trascorrere momenti di relax o ricevere amici e famiglia. Dal salone si accede a un grande balcone, perfetto per cenare all’aperto e godersi la vista e l’aria fresca. La casa dispone di due camere da letto spaziose, ideali per tutta la famiglia o per creare uno spazio di lavoro o relax, ed ulteriore balcone. Il bagno è completo e funzionale, con tutti i comfort necessari. La posizione è ideale: si trova vicino ai parchi, quindi potrai passeggiare e rilassarti immerso nella natura, magari facendo una passeggiata in riva al mare o nei parchi vicini. Inoltre, la proprietà dispone di un garage, che ti garantirà comodità e sicurezza per la tua auto. In breve, questa casa di 120 mq combina la bellezza del mare, la tranquillità dei parchi e la praticità di un garage, il tutto in una posizione privilegiata nel cuore di Nervi. Se vuoi saperne di più o organizzare una visita, sono qui per aiutarti!
Ref: 143352
Similar properties



