New Exclusive
Four-room apartment of 120 m² in Genova (16121)
€345,000
€2,875/m²
120 m²
4 rooms
2 bedrooms
1 bathroom
Features
Elevator
Concierge
About this four-room apartment in Genova (16121)
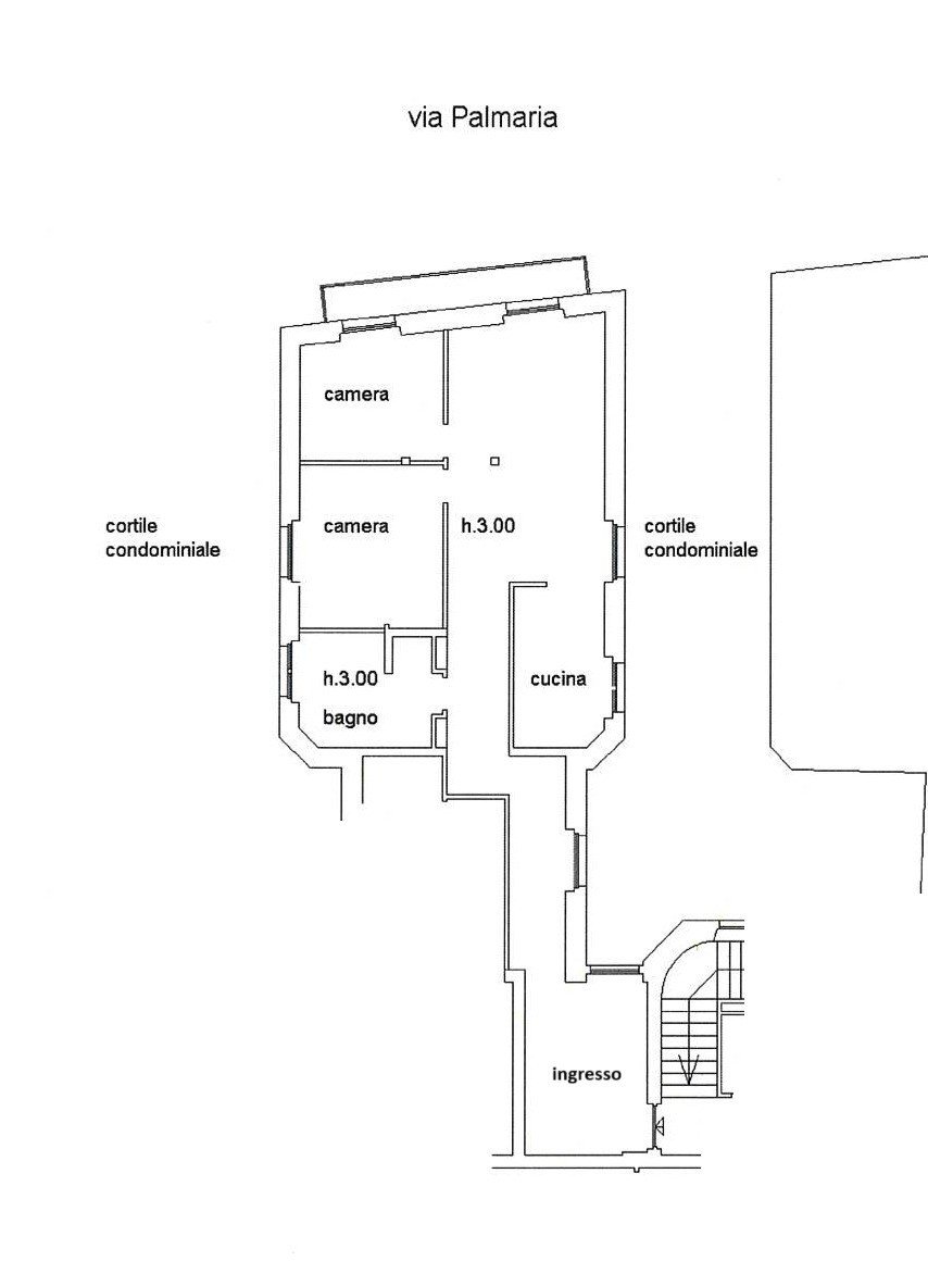
Genoa Centre, Via XX Settembre, 120 m² flat
Very central location, very convenient and well served, high floor with lift, 120 m².
Well-maintained period building with lift, concierge service and central heating.
Very quiet, recently renovated flat on the 5th floor with lift and balcony.
Spread over approximately 120m², it has a large entrance hall, living room with open-plan kitchen, two bedrooms and a large bathroom with bath and shower.
A unique opportunity in the city centre!
Reference: 152697
Equipments
Indoor
TV plug
Other
Year of construction: 1900
Number of floors in the building: 6
Luxury residence
Pad
Energy efficiency
Energy consumption :
Energy-efficient property Energy-inefficient property
Greenhouse gas emission :
Low GHG emissions High GHG emissions
Where is the property located?
This apartment is located at Genova (16121).
Similar properties
Popover 1
Popover 2
Popover 3
Popover 4















