Four-room apartment of 169 m² in Recanati (62019)
About this four-room apartment in Recanati (62019)
Vendita Appartamenti - Rione Grazie, Recanati (MC)
Descrizione:
Proponiamo in vendita diversi appartamenti - tutti appena ristrutturati - situati nel caratteristico e tranquillo Rione Grazie di Recanati, uno dei quartieri storici più affascinanti della città, a pochi passi dal Santuario di Loreto e dal centro storico. Questi appartamenti sono ideali per chi cerca una soluzione abitativa in una zona residenziale, ma ben collegata, con tutti i principali servizi a portata di mano. Gli immobili offrono spazi comodi e luminosi, perfetti sia per famiglie che per chi desidera un investimento nella città di Recanati.
Questi appartamenti recentemente ristrutturati completamente sono tutti al primo piano di una palazzina e sono tutti comprendenti la mansarda sopra.
Tipologia degli appartamenti disponibili a partire dal più piccolo:
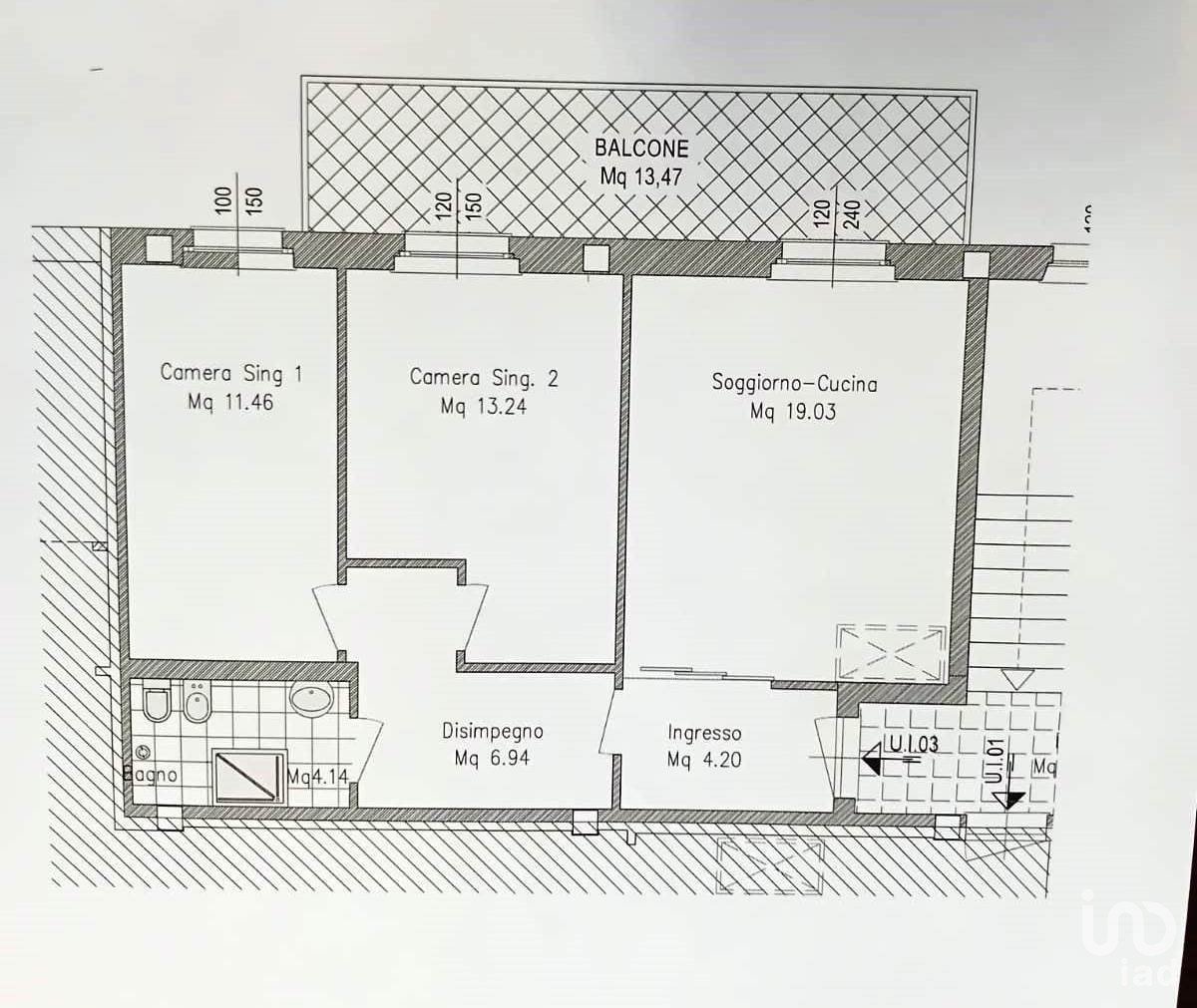
Appartamento (C) - Piano primo e ultimo con terrazzo e mansarda
- Superficie: appartamento 70 mq. + mansarda 113 mq. + terrazzo 13 mq.
Camere da letto: 2 camere da letto
Bagni: 1 bagni, con doccia
Soggiorno: con cucina e accesso al balcone
Prezzo 128.000 € trattabili
Appartamento (A) - Piano primo e ultimo con terrazzo e mansarda
- Superficie: appartamento 93 mq. + mansarda 112 mq. + terrazzo 13 mq.
Camere da letto: 3 camere da letto (1 matrimoniali, 2 singola)
Bagni: 1 bagni, con doccia
Soggiorno: con cucina e accesso al balcone
Prezzo 178.000 € trattabili
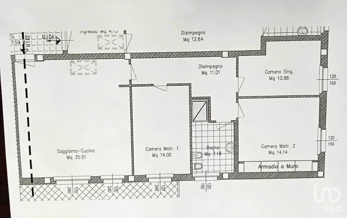
Appartamento (B) - Piano primo e ultimo con terrazzo e mansarda
- Superficie: appartamento 110 mq. + mansarda 108 mq. + terrazzo 15 mq.
Camere da letto: 3 camere da letto (2 matrimoniali, 1 singola)
Bagni: 1 bagni, con doccia
Soggiorno: con cucina e accesso al balcone
Prezzo 193.000 € trattabili
Appartamento (D) - Piano primo e ultimo con terrazzo e mansarda
- Superficie: appartamento 140 mq. + mansarda 107 mq. + terrazzo 15 mq.
Camere da letto: 4 camere da letto (3 matrimoniali, 1 singola)
Bagni: 1 bagni, con antibagno
Soggiorno: con cucina e accesso al balcone
Prezzo 235.000 € trattabili
Caratteristiche comuni a tutti gli appartamenti:
- Mansarda: Spazio aggiuntivo da utilizzare come studio o camera per gli ospiti
- Posizione: Nel cuore del Rione Grazie, a pochi passi dal centro storico di Recanati e dai principali servizi (supermercati, scuole, farmacie, fermate bus).
- Parcheggio: Facilità di parcheggio nelle vicinanze.
- Ristrutturazioni: Gli appartamenti sono stati ristrutturati di recente o sono in ottimo stato, pronti per essere abitati.
- Ottima esposizione: Tutti gli appartamenti sono ben esposti alla luce naturale, garantendo ambienti luminosi e accoglienti.
Prezzi: A partire da € 128.000,00 (trattabili), con opzioni per ogni esigenza e budget.
Note:
Questi appartamenti rappresentano un'ottima opportunità per chi desidera vivere a Recanati, in una zona tranquilla e ben servita, ma con la comodità di essere vicino alle principali attrazioni turistiche e culturali della città. Ogni immobile offre ampi spazi, comfort moderni e la possibilità di personalizzare gli ambienti secondo le proprie esigenze.
Equipments
Other
Energy efficiency
Energy consumption :
This apartment is located at Recanati (62019).





