Four-room apartment of 156 m² in Vigonza (35010)
Features
About this four-room apartment in Vigonza (35010)
APPARTAMENTO 3 CAMERE CON SCOPERTO ESCLUSIVO - SAN VITO - VIGONZA (PADOVA)
Dove ogni giorno sa di casa, e ogni dettaglio parla di futuro.
In un elegante quartiere residenziale, immerso nella tranquillità ma a pochi minuti da tutti i servizi essenziali, nasce un nuovo progetto abitativo pensato per chi cerca uno stile di vita moderno, efficiente e di qualità superiore.
Due palazzine esclusive, composte ciascuna da sole 8 unità ciascuna, ospitano appartamenti di ultima generazione progettati con cura in ogni dettaglio.
Inizio lavori: Luglio 2025
Consegna prevista: Dicembre 2026
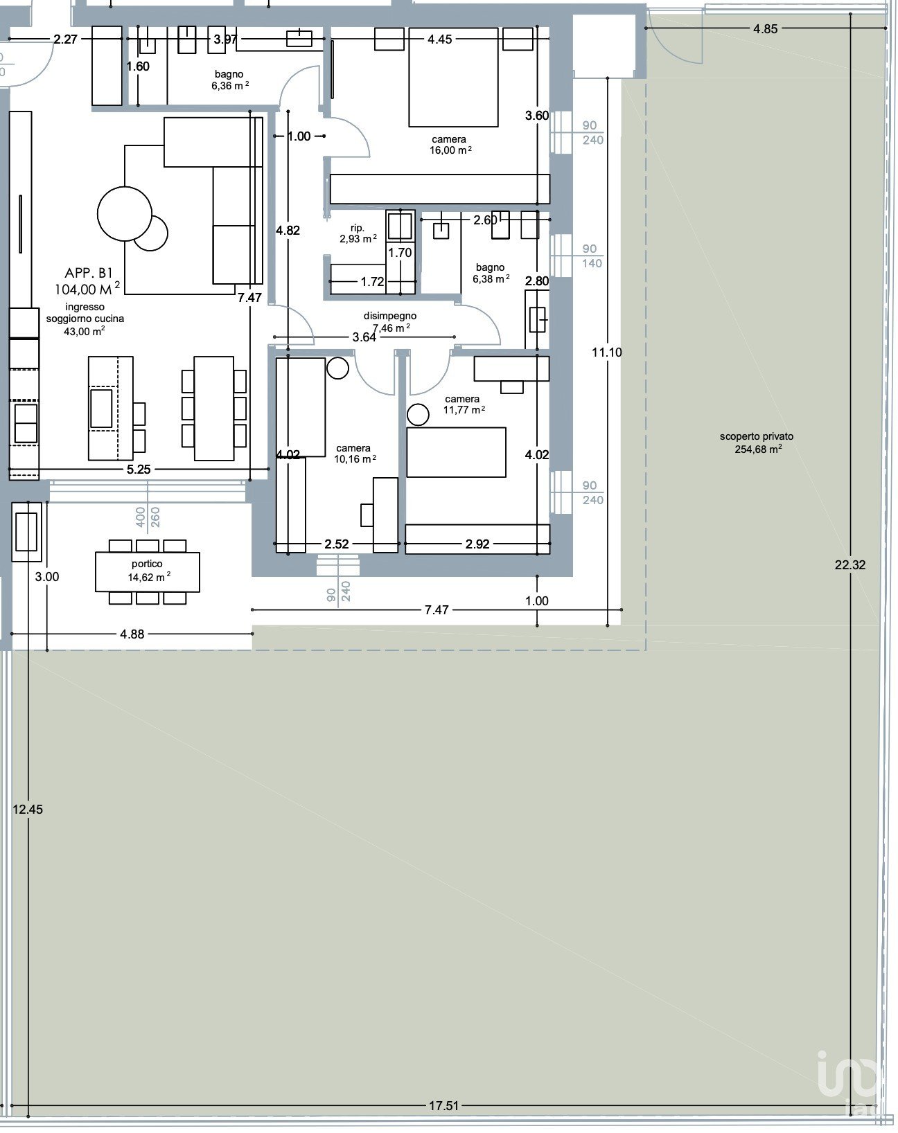
L'immobile si compone di:
- Zona giorno di 43 mq,
- Disimpegno di 9, 12 mq
- Bagno finestrato di 6, 40 mq,
- Bagno cieco di 6,36 mq,
- Camera matrimoniale di 15,13 mq,
- Camera di 11,77 mq,
- Camera di 10,16 mq
- Lavanderia di 2,16 mq
- Portico di 14,60 mq
- Scoperto privato di 255 mq
- Garage + ripostiglio di 25,42 mq
- N 2 posti auto scoperti
Il totale della superficie calpestabile è di 104 mq e la sua esposizione è SUD-EST.
Sono disponibili anche altre soluzioni site al PIANO TERRA dove ogni appartamento è unico: diverse metrature di giardino privato ed esposizioni su più lati.
Contattaci per scoprire in anteprima questo progetto esclusivo e le altre proposte!
Equipments
Indoor
Outdoor
Other
Energy efficiency
Energy consumption :
This apartment is located at Vigonza (35010).






