Exclusive
Country home 0 rooms of 900 m² in Monteprandone (63076)
€150,000
€167/m²
900 m²
About this house of 0 rooms in Monteprandone (63076)
A Monteprandone, proponiamo in vendita un grande casolare con vista mare, a soli 5 km dalle spiagge di San Benedetto Del Tronto.
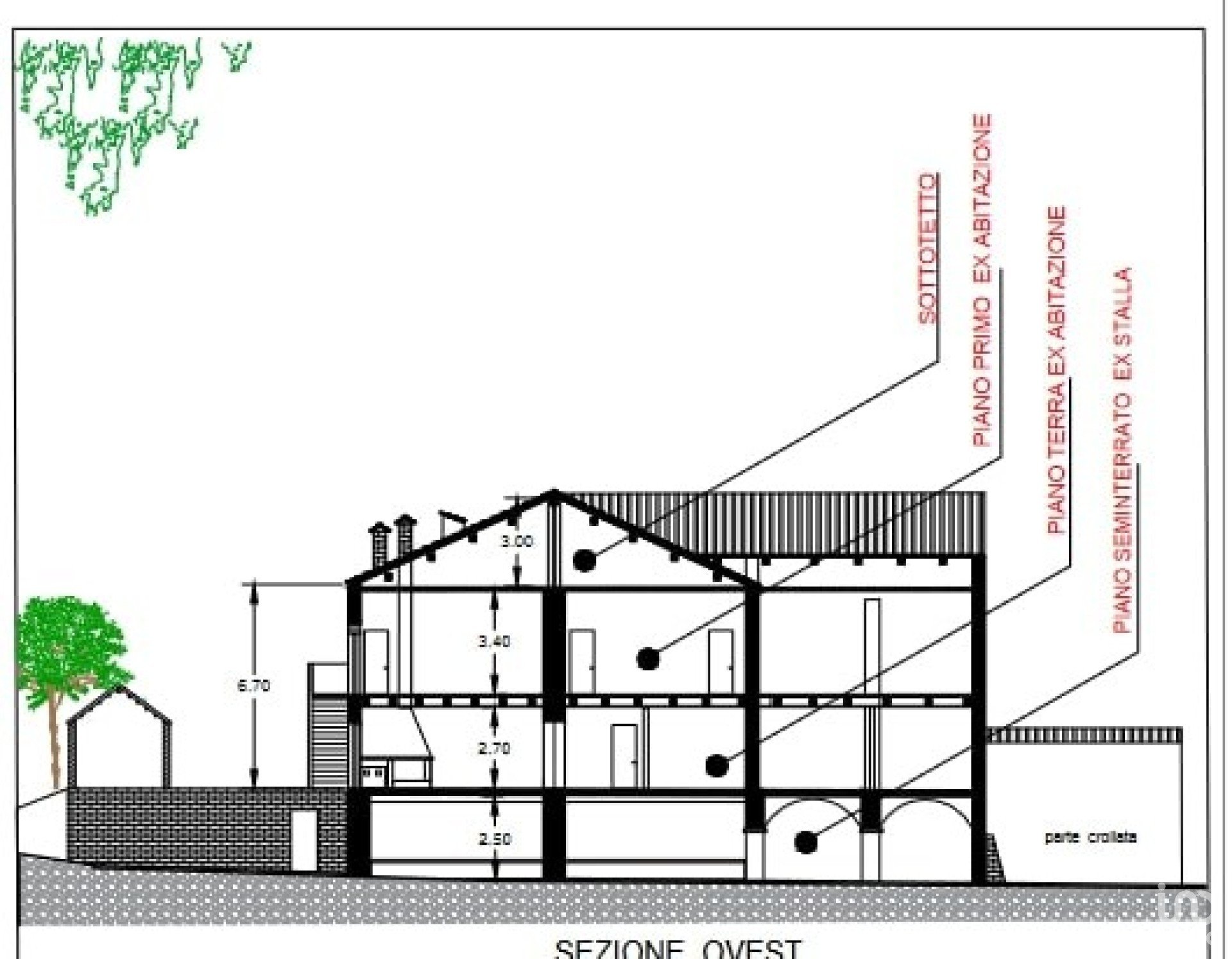
La proprietà è composta da un grande casolare di oltre 700 mq, di 2 annessi per altri 150 e un terreno pianeggiante di mq 3.000.
I fabbricati, seppur accatastati, necessitano di ristrutturazione totale.
Possibilità di acquisto di altro terreno circostante.
Per maggiori informazioni sulla proprietà e gli interventi edilizi previsti, contattateci al. 3357639105
Reference: 109746
Equipments
Outdoor
Land surface: 3,000 m²
Other
Year of construction: 1800
Where is the property located?
This house is located in Monteprandone (63076).
Similar properties
Popover 1
Popover 2
Popover 3
Popover 4








