Townhouse 4 rooms of 127 m² in Civitanova Marche (62012)
About this house of 4 rooms in Civitanova Marche (62012)
Civitanova Marche – Soluzione indipendente con corte privata
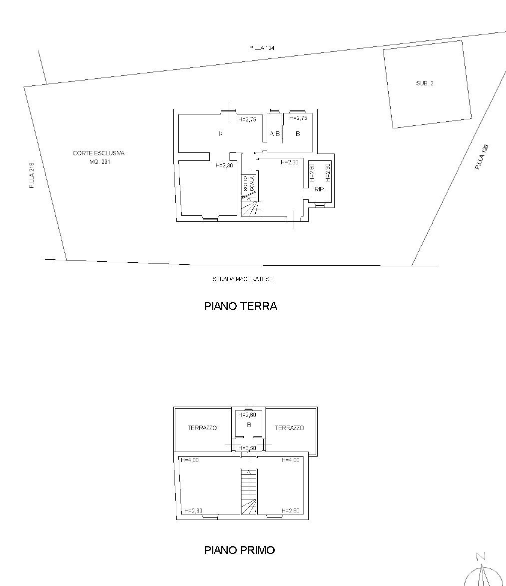
In strada Maceratese, in posizione strategica tra Civitanova Marche e Montecosaro Scalo, proponiamo in vendita una casa indipendente libera su quattro lati, disposta su due livelli, con garage e corte privata.
La distribuzione degli spazi
L’immobile si sviluppa su due livelli per un totale di circa 127 mq calpestabili:
Piano terra (77 mq): la disposizione originaria prevedeva ingresso, soggiorno, cucina abitabile, ripostiglio e bagno.
Piano primo (50 mq): due camere matrimoniali e accesso a due terrazze di circa 13 mq ciascuna.
Completano la proprietà:
Garage esterno di circa 27 mq, dotato di doppia serranda di ingresso, pratico e funzionale.
Corte privata di circa 285 mq
Stato e lavori eseguiti
L’immobile è stato già portato internamente al grezzo, con la realizzazione di un nuovo solaio, consentendo al futuro acquirente di completare i lavori secondo le proprie esigenze e il proprio gusto personale.
Opportunità
Questa proprietà rappresenta una soluzione interessante per chi cerca indipendenza ad un prezzo contenuto, con la possibilità di personalizzare completamente gli interni e valorizzare al meglio gli spazi.
Grazie alla metratura, alla corte privata e alla posizione strategica tra Civitanova e Montecosaro Scalo, la casa si presta sia come abitazione principale che come investimento immobiliare da mettere a reddito.
L'annuncio mostra anche alcuni render interno/esterno per mostare le potenzialità dell'immobile.
📞 Contattami per saperne di più o fissare una visita a questa casa indipendente in Civitanova Marche.
👉 Scopri altri immobili sul sito alessiocarusoimmobiliare.com
Equipments
Outdoor
Other
This house is located in Civitanova Marche (62012).





