House 5 rooms of 100 m² in Murialdo (17013)
Features
About this house of 5 rooms in Murialdo (17013)
A Borgata Massimina, sulle colline sopra Murialdo, ti attende una casa che è un rifugio di pace, circondata dalla natura e con una vista piacevole sulla valle. Lontana dal caos ma a soli 40 minuti dal mare, rappresenta la soluzione ideale per chi sogna una seconda casa dove rigenerarsi e vivere momenti preziosi in famiglia.
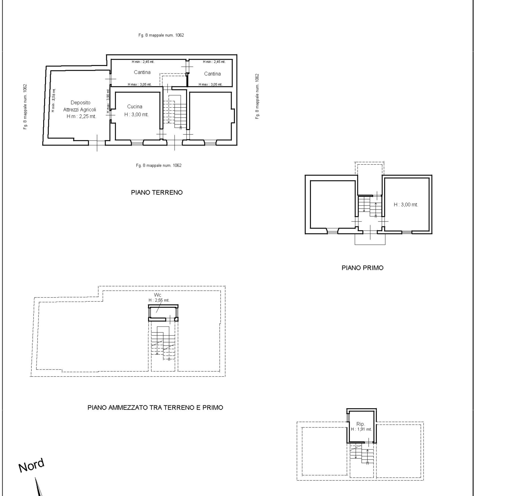
La proprietà è indipendente e offre spazi interni funzionali. Al piano terra, una sala accogliente, una cucina e una tavernetta con accesso diretto al giardino creano un’area perfetta per pranzi conviviali. Sul retro, un ampio locale cantina si sviluppa lungo tutta la parete lato monte, ideale per conservare vini, prodotti tipici o attrezzature.
Salendo al piano superiore troviamo due camere da letto e un balcone, accessibile dal vano scala, da cui godere di un panorama rilassante. Il bagno si trova al piano ammezzato, mentre sopra le camere, a metà scala, c’è un ulteriore locale che può diventare un secondo bagno.
All’esterno, la proprietà include un posto auto coperto con struttura in legno che può essere trasformata in un box in muratura, offrendo maggiore protezione. Dietro la casa, due fasce di terreno pianeggiante sono perfette per realizzare un orto o un giardino fiorito.
Alcuni interventi di personalizzazione ti permetteranno di rendere questa casa esattamente come la sogni, creando un rifugio su misura per te e la tua famiglia. Contattaci subito per prenotare la tua visita e scoprire di persona il potenziale che questa casa può offrire.
Equipments
Outdoor
Other
Energy efficiency
Energy consumption :
This house is located in Murialdo (17013).















