Traditional house 5 rooms of 224 m² in Caldogno (36030)
Features
About this house of 5 rooms in Caldogno (36030)
In una delle zone più richieste di Caldogno, precisamente nella nuova lottizzazione collaudata recentemente a Rettorgole, proponiamo in vendita cinque splendide villette a schiera, attualmente in fase di realizzazione.
Le abitazioni sono caratterizzate da un design moderno, grandi vetrate e linee architettoniche contemporanee che valorizzano la luminosità degli spazi interni ed esterni.
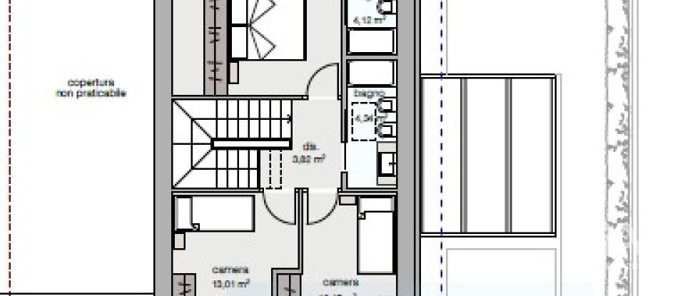
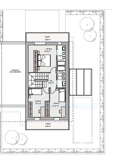
La superficie interna complessiva è di oltre 160 mq distribuiti su due livelli:
al piano terra si trova una spaziosa zona giorno open space (oltre 57 mq) con scenografica scala centrale, bagno finestrato per gli ospiti, comoda lavanderia separata e accesso diretto al garage privato collegato all’abitazione.
Il giardino esclusivo sui tre lati offre uno spazio verde ideale per relax o pranzi all’aperto sotto il portico coperto e la possibilità di aggiungere una piscina interrata.
Al primo piano troviamo tre camere da letto ampie e luminose, tra cui una matrimoniale padronale con affaccio su di una loggia privata e con bagno finestrato interno. Completano la zona notte altre due comode camere ed un ulteriore bagno finestrato.
Ogni dettaglio costruttivo rispecchia standard elevati: impianto fotovoltaico di 6 kw, isolamento termoacustico avanzato, serramenti con triplo vetro ad alta efficienza energetica, VMC per il ricambio dell'aria, finiture di pregio, nessuna parete a confine a tra le abitazioni che risultano quindi completamente indipendenti.
Situate in posizione strategica vicina ai principali servizi del quartiere, queste villette distano solo 10 minuti dal centro storico di Vicenza garantendo tranquillità senza rinunciare alla comodità urbana.
Soluzione perfetta per famiglie o chi desidera vivere nel verde senza compromessi sulla qualità dell’abitare!
Contattaci subito per ricevere maggiori informazioni o fissare un appuntamento: saremo lieti di accompagnarti nella scelta della tua nuova casa.
IAD - MODO IMMOBILIARE
Paolo Mauri
Via Divisione Folgore 24 - Vicenza
0444/294182
cel. 380-1020192
paolo.mauri@modoimmobiliare.it
info@modoimmobiliare.it
www.modoimmobiliare.it
Equipments
Indoor
Outdoor
Other
Energy efficiency
Energy consumption :
This house is located in Caldogno (36030).



