Farm 4 rooms of 120 m² in Calvagese della Riviera (25080)
Features
About this house of 4 rooms in Calvagese della Riviera (25080)
Villa indipendente in vendita a Carzago della Riviera, posizionata in zona tranquilla comoda ai servizi.
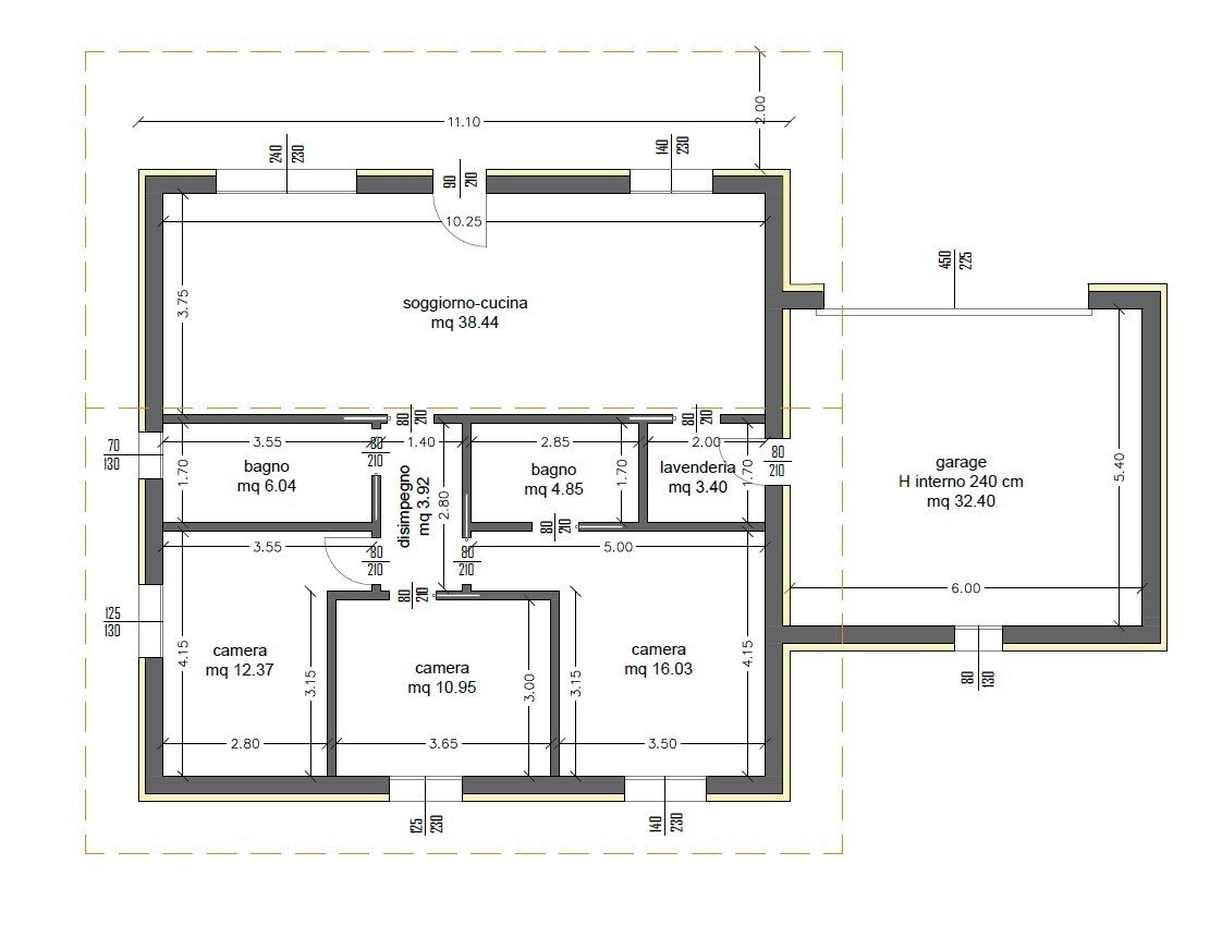
La casa è di circa 120 mq, con un box auto di circa 32 mq., calpestabili, su un terreno di 5650,00 mq., per un commerciale di mq 166,00.
La sua composizione è con ingresso indipendente, soggiorno con zona cucina a vista, 2 bagni, 3 camere letto di cui 2 matrimoniali e 1 singola .
Alla villa su richiesta si può aggiungere la piscina, un impianto di domotica avanzata, il giardino piantumato ed altri accessori.
Classe Energetica A4 11,00 Kw2a
Le informazioni presentate sono corrette ma non costituiscono presupposto contrattuale
Potete contattarci senza impegno per ottenere maggiori informazioni o per prenotare una visione per questa villa a Carzago della Riviera
Equipments
Outdoor
Other
Energy efficiency
Energy consumption :
Greenhouse gas emission :
This house is located in Calvagese della Riviera (25080).









