House 4 rooms of 130 m² in Cavezzo (41032)
€250,000
€1,923/m²
130 m²
4 rooms
3 bedrooms
2 bathrooms
Features
Garden
About this house of 4 rooms in Cavezzo (41032)
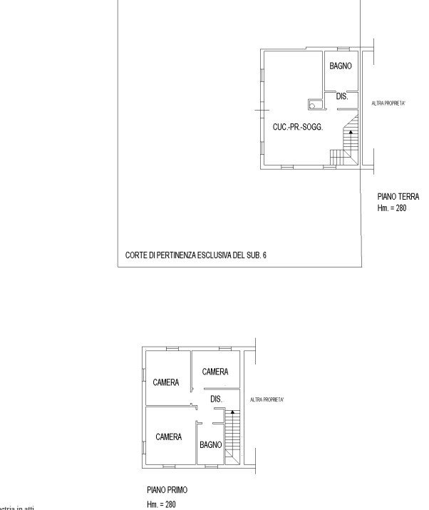
Porzione di casa di ampie metrature con garage doppio ed ampio giardino di proprietà
Rif. Immobile: SF354 La Iad di San Felice sul Panaro propone in vendita a Ponte Motta porzione di casa di ampie metrature con giardino di proprietà e garage doppio. Internamente la soluzione, disposta su due livelli è così composta: Ingresso a piano terra in soggiorno con cucina a vista, disimpegno e bagno. Salendo al piano superiore troviamo il reparto notte con due camere da letto matrimoniali, una camera singola ed il secondo bangno. ESTERNO: Ampio giardino di proprietà. PERCHE ACQUISTARE L'IMMOBILE: -Ampie metrature -Ampio giardino -Ingresso indipendente Rif.Immobile: SF354
Reference: 150773
Equipments
Outdoor
Garage
Other
Year of construction: 2007
Where is the property located?
This house is located in Cavezzo (41032).
Similar properties
Popover 1
Popover 2
Popover 3
Popover 4



