Townhouse 5 rooms of 208 m² in Concordia sulla Secchia (41033)
Features
About this house of 5 rooms in Concordia sulla Secchia (41033)
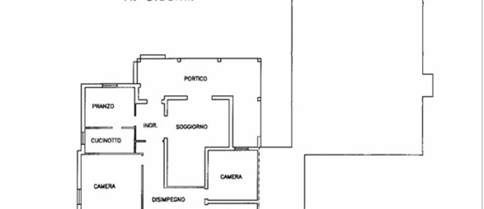
Villa in Vendita a Concordia sulla Secchia
L'Agenzia Immobiliare Risiko propone in vendita a Concordia sulla Secchia, frazione Vallalta, villa con ampio giardino. INTERNO: l'abitazione si presenta composta da ingresso, cucinotto con sala da pranzo, ampio soggiorno con camino, disimpegno notte, 3 camere da letto matrimoniali di cui 1 con bagno e veranda, 2 bagni, taverna con camino, lavanderia. Annesso alla casa ampio capannone utilizzato come deposito con appartamento bilocale utilizzabile in contesti bifamiliari. ESTERNO: Villa situata in zona tranquilla, con veranda abitabile, circondata da un ampio giardino di proprietà ed area cortiliva con pergola per 2 posti auto. PERCHE' ACQUISTARE L'IMMOBILE: - potenziale bifamiliare - capannone adatto a piccole attività - ampi spazi interni ed esterni - zona tranquilla.
Equipments
Outdoor
Other
This house is located in Concordia sulla Secchia (41033).

