

€150,000
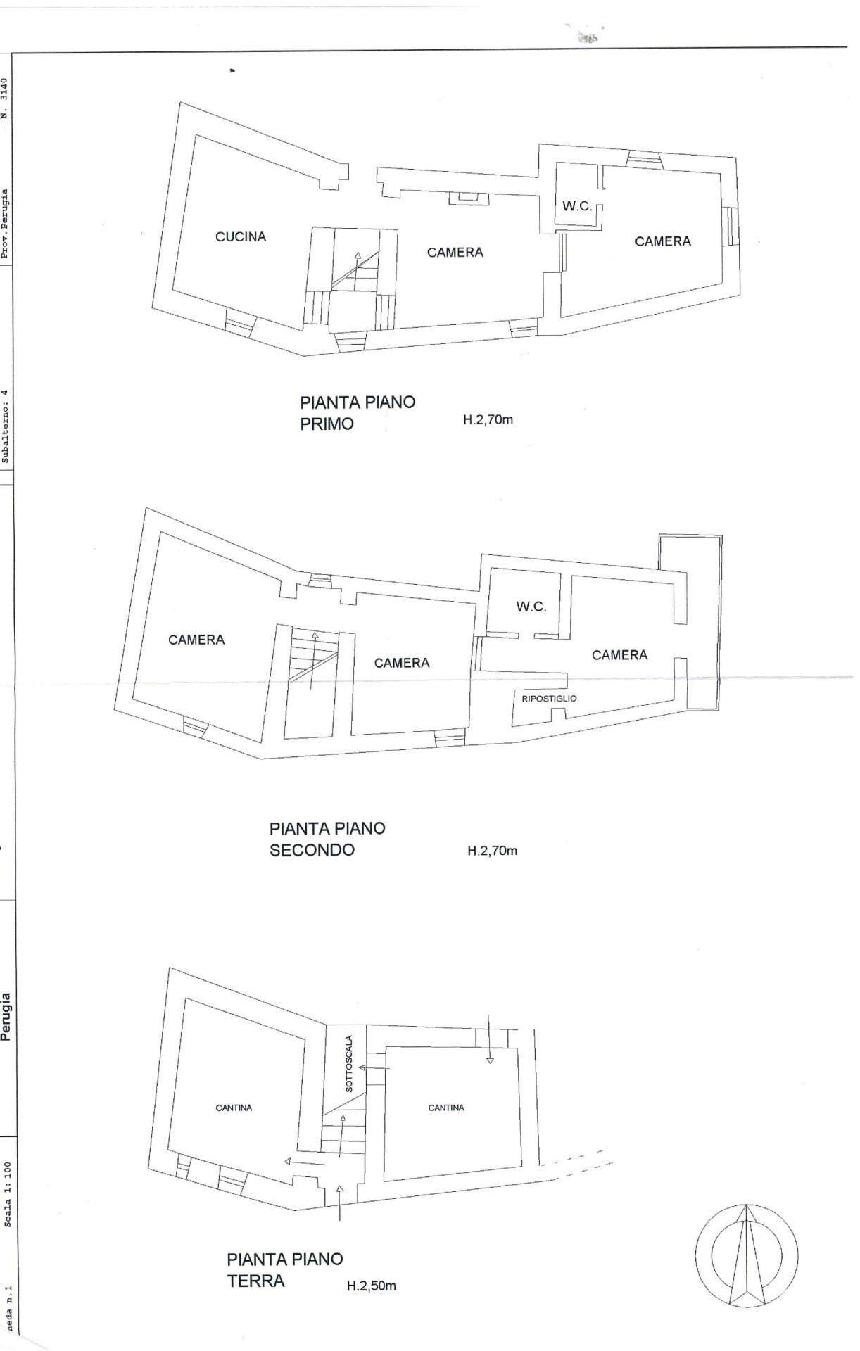
Nel cuore del borgo storico di Mongiovino, a soli 100 metri dal Santuario della Madonna di Mongiovino, proponiamo in vendita una casa cielo-terra libera su tre lati completamente ristrutturata, pronta all’uso sia come abitazione che immediatamente locabile come casa-vacanze, in quanto venduta completa di arredamento di ottimo gusto e finiture. L’immobile si trova in una zona tranquilla ma strategica, facilmente raggiungibile e ben servita. Nelle immediate vicinanze menzioniamo Tavernelle, il cui centro è raggiungibile anche a piedi e nei pressi della quale si trova il "Parco Acquatico" con i suoi grandi prati e le ampie e fresche piscine; il bellissimo borgo di Panicale, con una presenza turistica in forte crescita. Perugia si trova a soli 27 Km di distanza e a solo 20 Km abbiamo lo splendido parco del Lago Trasimeno, quasi interamente ciclabile. La casa ha una superficie catastale di circa 227 m² e calpestabile di circa 155 m², distribuiti su due piani. Al piano primo si trovano una cucina abitabile e luminosa, un bagno finestrato con doccia, un soggiorno e una sala da pranzo (entrambi provvisti di caminetti funzionanti). Al piano superiore, la zona notte/studio è composta da tre ampi vani tra cui una camera da letto con doppia finestra e un secondo bagno con vasca. Al piano superiore anche un balcone abitabile con affaccio sulla valle. L’immobile è dotato di infissi con doppi vetri, zanzariere su tutte le finestre, impianti funzionanti e tetto rifatto integralmente nel 2006, garantendo ottime condizioni strutturali. Gli ambienti interni, ben distribuiti, conservano travi in legno a vista, valorizzate da un restauro conservativo di grande fascino. Completano la proprietà un garage con lavabo , una cantina già adibita a uso lavanderia, un ulteriore fondo/rimessa biciclette. La classe energetica è G. All'esterno, una corte di pertinenza condivisa dalle potenzialità non ancora pienamente sfruttate. Prezzo richiesto: € 150.000 La vendita include tutti gli arredi. Soluzione ideale per chi cerca una prima o seconda casa in Umbria, oppure un investimento pronto all’uso nel settore turistico/cicloturistico.
Ref: 144211
Energy performance diagnosis
G
Similar properties
