Traditional house 6 rooms of 145 m² in Porto Mantovano (46047)
About this house of 6 rooms in Porto Mantovano (46047)
Villa a schiera con ampi spazi e tecnologie moderne – Porto Mantovano (MN), Via Massimo D’Antona 32
In una zona tranquilla, soleggiata e caratterizzata da totale assenza di rumori, proponiamo in vendita una splendida villa a schiera di 145 mq, libera su due lati e inserita in un contesto residenziale composto da sole quattro unità.
L’abitazione si sviluppa su due piani fuori terra, oltre a un comodo piano interrato collegato internamente.
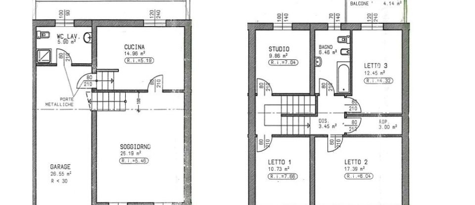
Piano Terra
Ampio soggiorno luminoso, impreziosito da un elegante camino a pellet, capace di scaldare anche la zona notte al piano superiore.
Cucina moderna con grande vetrata apribile, che si affaccia direttamente su un meraviglioso porticato open space, completamente pavimentato e circondato da piante e prato: uno spazio perfetto per pranzi all’aperto, relax e convivialità.
Bagno di servizio finestrato.
Primo Piano
Tre camere da letto, tutte confortevoli e ben illuminate, di cui due con terrazzino.
Ulteriore stanza adibibile a camera o studio e un ripostiglio.
Secondo bagno, pratico e funzionale.
Sistema di riscaldamento e raffrescamento con impianto aria calda/fredda integrato.
Piano Interrato
Garage doppio di circa 27 mq, facilmente accessibile grazie allo scivolo e al cancello elettrico indipendente.
Possibilità di accesso anche direttamente dall’interno dell’abitazione.
Ripostiglio/lavanderia.
Dotazioni e comfort
Pannelli fotovoltaici per la produzione di energia elettrica, con accumulatori posizionati nel piano interrato, per un notevole risparmio energetico.
Pannelli solari termici indipendenti con boiler da 300 litri per l’autonomia dell’acqua calda.
Colonnina di ricarica per auto elettrica, alimentata dall’impianto fotovoltaico.
Camino termoventilato con distribuzione del calore al piano superiore.
Ingresso indipendente, completamente recintato, con cancelletto pedonale e grazioso giardino molto curato.
Contesto residenziale riservato e ben esposto al sole.
Perché sceglierla
Questa villa rappresenta una soluzione ideale per chi cerca spazi ampi, comfort moderni, efficienza energetica e tranquillità, senza rinunciare alla comodità dei servizi di Porto Mantovano.
Equipments
Indoor
Other
Energy efficiency
Energy consumption :
This house is located in Porto Mantovano (46047).













